takeofficeなら掲載物件の仲介手数料は無料です

篠崎ビル

住所 東京都中央区日本橋本町4-1-5
交通 JR総武線(快速)新日本橋」 徒歩1分
東京メトロ半蔵門線三越前」 徒歩3分
JR山手線神田」 徒歩5分
竣工 1961年08月 構造 RC
規模 地上5階, 地下1階 耐震基準 旧耐震基準
床構造 フリーアクセス 空調設備 個別空調
天井高 - 基準階面積 66坪(218m2)
コンセント容量 - 施工会社

最新の募集状況や類似物件については、
こちらにお問い合わせください。

篠崎ビル 外観

外観

  • 篠崎ビル エントランス写真

    エントランス

  • 基準階(3~4F)

    基準階(3~4F)

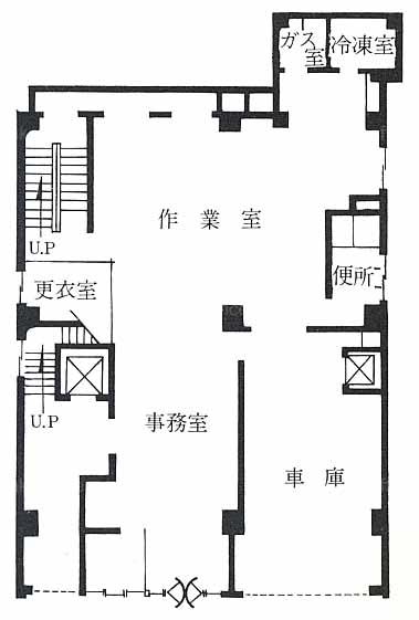
  • 1F

    1F

  • 2F

    2F

  • 5F

    5F

内見やお見積りなどの各種お問い合わせ

全物件
仲介手数料無料
仲介から
入居工事まで
ワンストップで対応
経験豊富なスタッフが
スピード感をもって
対応

周辺での似た条件の物件

非公開物件 多数あり!

お問い合わせフォーム