takeofficeなら掲載物件の仲介手数料は無料です

スリーピー日本橋ビル

住所 東京都中央区日本橋本町4-1-13
交通 JR総武線(快速)新日本橋」 徒歩1分
東京メトロ銀座線三越前」 徒歩3分
JR山手線神田」 徒歩5分
竣工 1984年03月 構造 SRC
規模 地上10階, 地下1階 耐震基準 新耐震基準
床構造 フリーアクセス 30mm 空調設備 個別空調
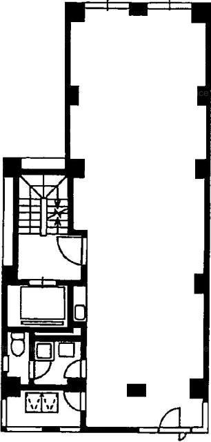
天井高 2400mm 基準階面積 33.91坪(112.1m2)
コンセント容量 35VA/m2 施工会社 三井住友建設

最新の募集状況や類似物件については、
こちらにお問い合わせください。

スリーピー日本橋ビル 外観

外観

  • スリーピー日本橋ビル エントランス写真

    エントランス

内見やお見積りなどの各種お問い合わせ

全物件
仲介手数料無料
仲介から
入居工事まで
ワンストップで対応
経験豊富なスタッフが
スピード感をもって
対応

周辺での似た条件の物件

非公開物件 多数あり!

お問い合わせフォーム