takeofficeなら掲載物件の仲介手数料は無料です

日本橋銀三ビル

住所 東京都中央区日本橋本町4-3-10
交通 JR総武線(快速)新日本橋」 徒歩2分
東京メトロ半蔵門線三越前」 徒歩4分
JR京浜東北線神田」 徒歩6分
竣工 1987年09月 構造 SRC
規模 地上7階, 地下1階 耐震基準 新耐震基準
床構造 - 空調設備 個別空調
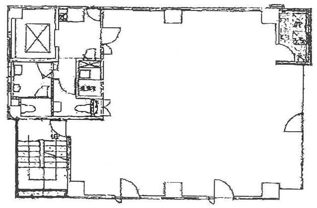
天井高 2450mm 基準階面積 27.25坪(90.08m2)
コンセント容量 - 施工会社

最新の募集状況や類似物件については、
こちらにお問い合わせください。

日本橋銀三ビル 外観

外観

  • 日本橋銀三ビル エントランス写真

    エントランス

建物パンフレット

建物パンフレットは作成時点のものであり、また計画段階のものも含まれる為、実際とは異なる場合がございます。

内見やお見積りなどの各種お問い合わせ

全物件
仲介手数料無料
仲介から
入居工事まで
ワンストップで対応
経験豊富なスタッフが
スピード感をもって
対応

周辺での似た条件の物件

非公開物件 多数あり!

お問い合わせフォーム