takeofficeなら掲載物件の仲介手数料は無料です

入江ビル

住所 東京都中央区日本橋本町4-5-14
交通 JR総武線(快速)新日本橋」 徒歩1分
JR山手線神田」 徒歩5分
東京メトロ日比谷線小伝馬町」 徒歩4分
竣工 1987年10月 構造 SRC
規模 地上9階, 地下1階 耐震基準 新耐震基準
床構造 フリーアクセス 50mm 空調設備 個別空調
天井高 2350mm 基準階面積 79.97坪(264.36m2)
コンセント容量 50VA/m2 施工会社

最新の募集状況や類似物件については、
こちらにお問い合わせください。

入江ビル 外観

外観

  • 入江ビル エントランス写真

    エントランス

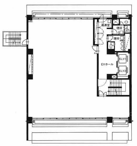
  • 3~5F

    3~5F

  • 1F

    1F

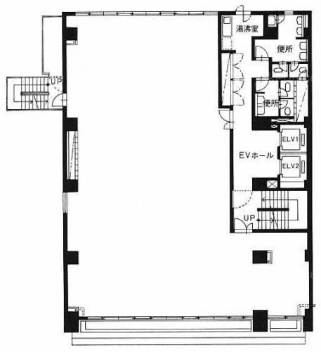
  • 6F

    6F

  • 7F

    7F

内見やお見積りなどの各種お問い合わせ

全物件
仲介手数料無料
仲介から
入居工事まで
ワンストップで対応
経験豊富なスタッフが
スピード感をもって
対応

周辺での似た条件の物件

非公開物件 多数あり!

お問い合わせフォーム