takeofficeなら掲載物件の仲介手数料は無料です

サトービル

住所 東京都中央区日本橋本町4-6-10
交通 JR総武線(快速)新日本橋」 徒歩2分
東京メトロ銀座線神田」 徒歩8分
東京メトロ日比谷線小伝馬町」 徒歩5分
竣工 1973年 構造 SRC
規模 地上9階, 地下1階 耐震基準 旧耐震基準
床構造 フリーアクセス 空調設備 個別空調
天井高 - 基準階面積 53.1坪(175.54m2)
コンセント容量 - 施工会社

最新の募集状況や類似物件については、
こちらにお問い合わせください。

サトービル 外観

外観

  • サトービル エントランス写真

    エントランス

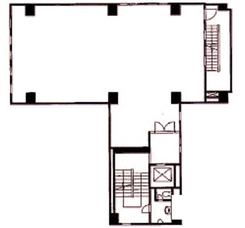
  • 基準階(2~6)

    基準階(2~6)

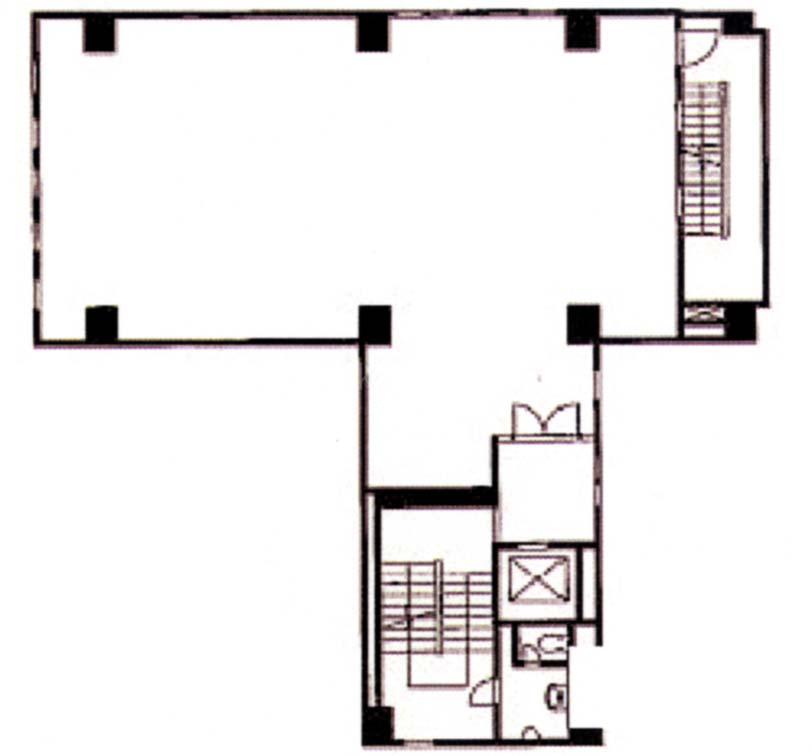
  • 4F・5F

    4F・5F

内見やお見積りなどの各種お問い合わせ

全物件
仲介手数料無料
仲介から
入居工事まで
ワンストップで対応
経験豊富なスタッフが
スピード感をもって
対応

周辺での似た条件の物件

非公開物件 多数あり!

お問い合わせフォーム