takeofficeなら掲載物件の仲介手数料は無料です

三恵日本橋ビル

住所 東京都中央区日本橋本町4-7-1
交通 JR総武線(快速)新日本橋」 徒歩1分
東京メトロ銀座線三越前」 徒歩3分
JR山手線神田」 徒歩7分
竣工 1972年05月 構造 SRC
規模 地上9階, 地下1階 耐震基準 旧耐震基準
床構造 - 空調設備 個別空調
天井高 2800mm 基準階面積 63.28坪(209.19m2)
コンセント容量 - 施工会社

最新の募集状況や類似物件については、
こちらにお問い合わせください。

三恵日本橋ビル 外観

外観

  • 三恵日本橋ビル エントランス写真

    エントランス

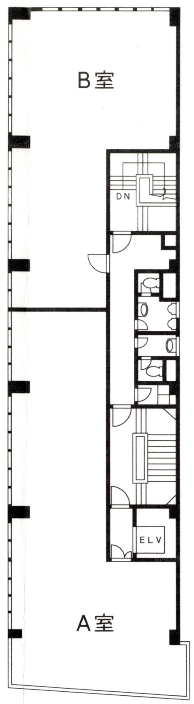
  • 5F

    5F

内見やお見積りなどの各種お問い合わせ

全物件
仲介手数料無料
仲介から
入居工事まで
ワンストップで対応
経験豊富なスタッフが
スピード感をもって
対応

周辺での似た条件の物件

非公開物件 多数あり!

お問い合わせフォーム