takeofficeなら掲載物件の仲介手数料は無料です

ネオカワイビルディング

住所 東京都中央区日本橋本町4-8-15
交通 JR総武線(快速)新日本橋」 徒歩1分
東京メトロ銀座線三越前」 徒歩4分
東京メトロ日比谷線小伝馬町」 徒歩5分
竣工 1992年03月 構造 SRC
規模 地上10階, 地下1階 耐震基準 新耐震基準
床構造 フリーアクセス 50mm 空調設備 個別空調
天井高 2500mm 基準階面積 130.42坪(431.14m2)
コンセント容量 - 施工会社

最新の募集状況や類似物件については、
こちらにお問い合わせください。

ネオカワイビルディング 外観

外観

  • ネオカワイビルディング エントランス写真

    エントランス

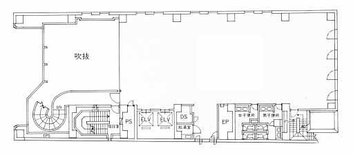
  • 基準階(4~9F)

    基準階(4~9F)

  • 1F

    1F

  • 2F

    2F

  • 3F

    3F

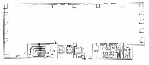
  • 10F

    10F

建物パンフレット

建物パンフレットは作成時点のものであり、また計画段階のものも含まれる為、実際とは異なる場合がございます。

内見やお見積りなどの各種お問い合わせ

全物件
仲介手数料無料
仲介から
入居工事まで
ワンストップで対応
経験豊富なスタッフが
スピード感をもって
対応

周辺での似た条件の物件

非公開物件 多数あり!

お問い合わせフォーム