takeofficeなら掲載物件の仲介手数料は無料です

KDX新日本橋駅前ビル

住所 東京都中央区日本橋本町4-8-16
交通 JR総武線(快速)新日本橋」 徒歩1分
東京メトロ日比谷線小伝馬町」 徒歩5分
東京メトロ銀座線三越前」 徒歩5分
竣工 1992年05月 構造 SRC
規模 地上10階, 地下1階 耐震基準 新耐震基準
床構造 フリーアクセス 50mm 空調設備 個別空調
天井高 2600mm 基準階面積 108.63坪(359.11m2)
コンセント容量 - 施工会社
坪面積 用途 賃料 坪単価 共益費 入居可能日
5 108.67坪 事務所 相談 相談 相談 相談
KDX新日本橋駅前ビル 外観

外観

  • KDX新日本橋駅前ビル エントランス写真

    エントランス

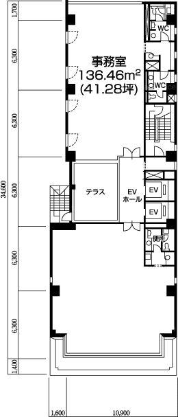
  • 基準階(2~9F)

    基準階(2~9F)

  • 1F

    1F

  • 2F

    2F

  • 10F

    10F

内見やお見積りなどの各種お問い合わせ

全物件
仲介手数料無料
仲介から
入居工事まで
ワンストップで対応
経験豊富なスタッフが
スピード感をもって
対応

※「ご相談」と記載されている項目について
賃貸人が募集賃料条件を守秘義務の関係から明示していない場合に、【ご相談】と記載しております。
フリーレント(賃料免除)期間、使用面積、入居時期、テナント様の与信などによりご提示できる条件が若干変化いたします。
お手数ですが、詳細につきましては、上記よりお問い合わせください。

周辺での似た条件の物件

非公開物件 多数あり!

お問い合わせフォーム