takeofficeなら掲載物件の仲介手数料は無料です

千城ビル

住所 東京都中央区日本橋本町4-8-16
交通 JR総武線(快速)新日本橋」 徒歩1分
東京メトロ半蔵門線三越前」 徒歩4分
竣工 1979年08月 構造 SRC+RC
規模 地上9階, 地下1階 耐震基準 旧耐震基準
床構造 - 空調設備 個別空調
天井高 - 基準階面積 47.04坪(155.5m2)
コンセント容量 - 施工会社

最新の募集状況や類似物件については、
こちらにお問い合わせください。

千城ビル 外観

外観

  • 千城ビル エントランス写真

    エントランス

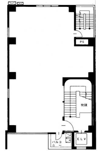
  • 基準階(3~8F)

    基準階(3~8F)

  • 1F

    1F

  • 2F

    2F

  • 9F

    9F

  • B1F

    B1F

内見やお見積りなどの各種お問い合わせ

全物件
仲介手数料無料
仲介から
入居工事まで
ワンストップで対応
経験豊富なスタッフが
スピード感をもって
対応

周辺での似た条件の物件

非公開物件 多数あり!

お問い合わせフォーム