takeofficeなら掲載物件の仲介手数料は無料です

丹生ビル

住所 東京都中央区日本橋2-1-17
交通 東京メトロ銀座線日本橋」 徒歩3分
JR山手線東京」 徒歩7分
東京メトロ半蔵門線三越前」 徒歩5分
竣工 1971年10月 構造 RC
規模 地上8階, 地下2階 耐震基準 旧耐震基準
床構造 - 空調設備 個別空調
天井高 2440mm 基準階面積 --
コンセント容量 - 施工会社

最新の募集状況や類似物件については、
こちらにお問い合わせください。

丹生ビル 外観

外観

  • 丹生ビル エントランス写真

    エントランス

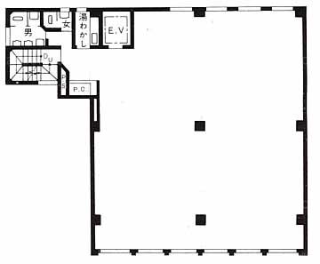
  • 基準階(2~4F)

    基準階(2~4F)

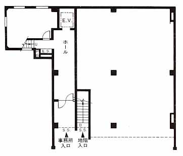
  • 1F

    1F

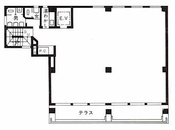
  • 5F

    5F

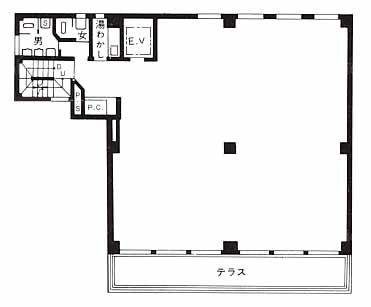
  • 6F

    6F

内見やお見積りなどの各種お問い合わせ

全物件
仲介手数料無料
仲介から
入居工事まで
ワンストップで対応
経験豊富なスタッフが
スピード感をもって
対応

周辺での似た条件の物件

非公開物件 多数あり!

お問い合わせフォーム