takeofficeなら掲載物件の仲介手数料は無料です

NTA日本橋ビル

住所 東京都中央区日本橋3-1-2
交通 東京メトロ銀座線日本橋」 徒歩2分
JR山手線東京」 徒歩3分
東京メトロ半蔵門線三越前」 徒歩7分
竣工 1991年07月 構造 SRC
規模 地上10階, 地下1階 耐震基準 新耐震基準
床構造 フリーアクセス 40mm 空調設備 個別空調
天井高 2450mm 基準階面積 66.67坪(220.4m2)
コンセント容量 - 施工会社

最新の募集状況や類似物件については、
こちらにお問い合わせください。

NTA日本橋ビル 外観

外観

  • NTA日本橋ビル エントランス写真

    エントランス

  • 基準階(3~8階)

    基準階(3~8階)

  • 9階

    9階

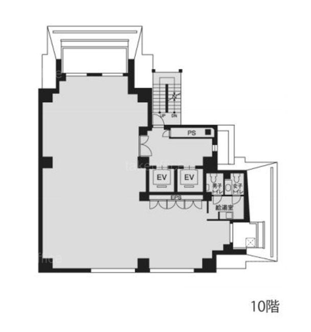
  • 10階

    10階

内見やお見積りなどの各種お問い合わせ

全物件
仲介手数料無料
仲介から
入居工事まで
ワンストップで対応
経験豊富なスタッフが
スピード感をもって
対応

周辺での似た条件の物件

非公開物件 多数あり!

お問い合わせフォーム