takeofficeなら掲載物件の仲介手数料は無料です

E-1ビル

住所 東京都中央区日本橋3-3-12
交通 都営浅草線日本橋」 徒歩3分
JR山手線東京」 徒歩5分
東京メトロ銀座線京橋」 徒歩6分
竣工 1992年03月 構造 SRC
規模 地上8階, 地下1階 耐震基準 新耐震基準
床構造 フリーアクセス 40mm 空調設備 個別空調
天井高 2450mm 基準階面積 41.14坪(136m2)
コンセント容量 30VA/m2 施工会社

最新の募集状況や類似物件については、
こちらにお問い合わせください。

E-1ビル 外観

外観

  • E-1ビル エントランス写真

    エントランス

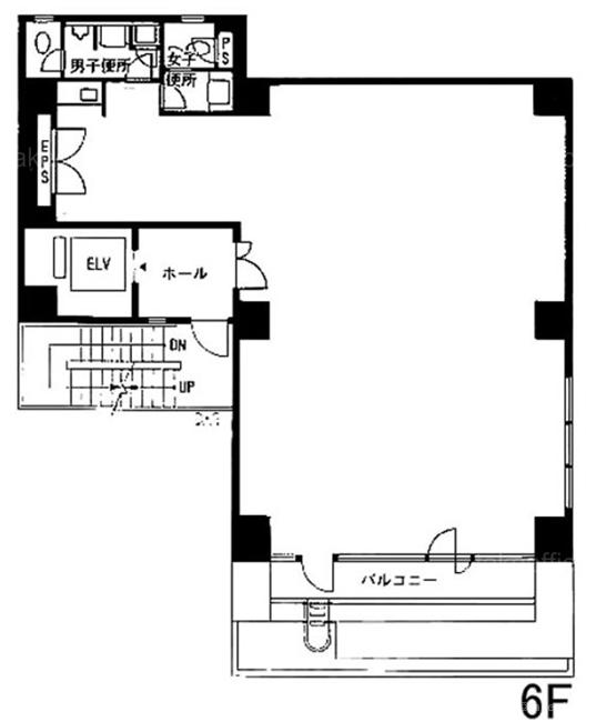
  • 基準階

    基準階

内見やお見積りなどの各種お問い合わせ

全物件
仲介手数料無料
仲介から
入居工事まで
ワンストップで対応
経験豊富なスタッフが
スピード感をもって
対応

周辺での似た条件の物件

非公開物件 多数あり!

お問い合わせフォーム