takeofficeなら掲載物件の仲介手数料は無料です

ニュー八重洲ビル

住所 東京都中央区日本橋3-5-12
交通 東京メトロ銀座線日本橋」 徒歩3分
JR山手線東京」 徒歩5分
東京メトロ銀座線京橋」 徒歩5分
竣工 1964年09月 構造 SRC
規模 地上10階, 地下2階 耐震基準 旧耐震基準
床構造 フリーアクセス 空調設備 個別空調
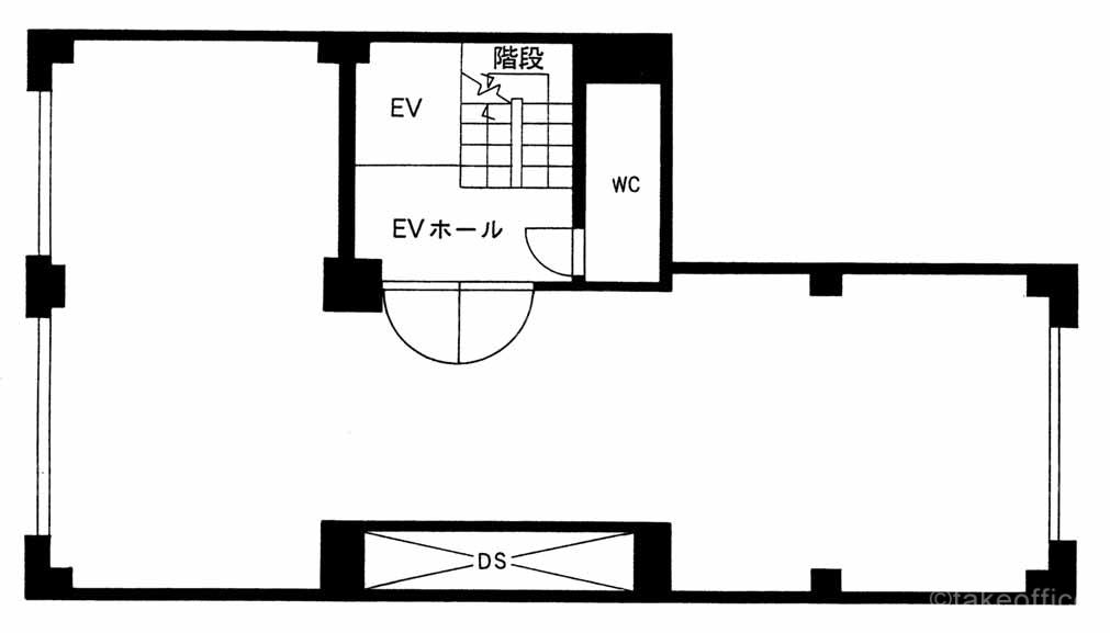
天井高 2280mm 基準階面積 60.3坪(199.34m2)
コンセント容量 - 施工会社

最新の募集状況や類似物件については、
こちらにお問い合わせください。

ニュー八重洲ビル 外観

外観

  • ニュー八重洲ビル エントランス写真

    エントランス

  • 基準階

    基準階

内見やお見積りなどの各種お問い合わせ

全物件
仲介手数料無料
仲介から
入居工事まで
ワンストップで対応
経験豊富なスタッフが
スピード感をもって
対応

周辺での似た条件の物件

非公開物件 多数あり!

お問い合わせフォーム