takeofficeなら掲載物件の仲介手数料は無料です

新日本橋ビルディング

住所 東京都中央区日本橋3-8-2
交通 東京メトロ銀座線日本橋」 徒歩2分
JR山手線東京」 徒歩5分
東京メトロ銀座線京橋」 徒歩6分
竣工 1960年05月 構造 SRC
規模 地上9階, 地下3階 耐震基準 耐震診断書有
床構造 フリーアクセス 50mm 空調設備 セントラル空調
天井高 2550mm 基準階面積 226.98坪(750.35m2)
コンセント容量 - 施工会社

最新の募集状況や類似物件については、
こちらにお問い合わせください。

新日本橋ビルディング 外観

外観

  • 新日本橋ビルディング エントランス写真

    エントランス

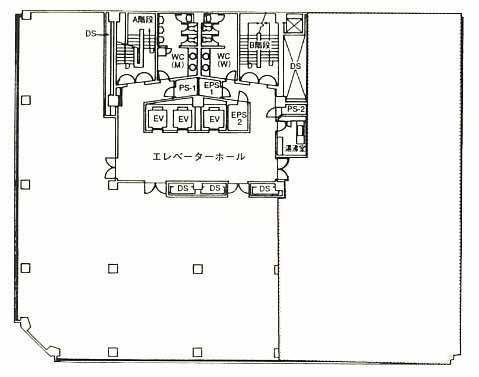
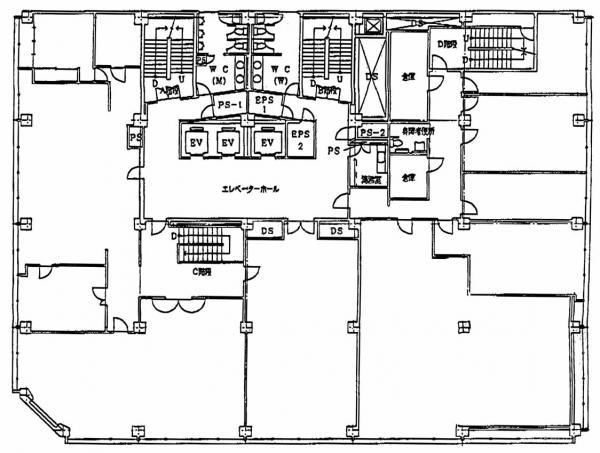
  • 5F

    5F

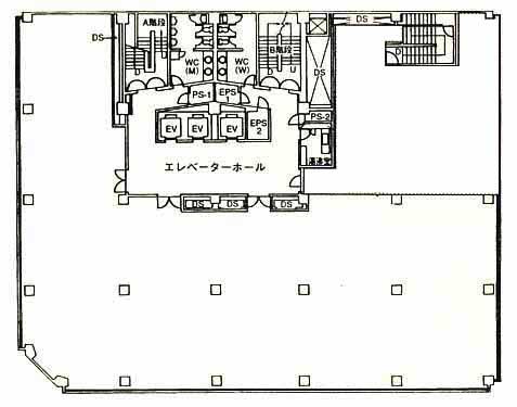
  • 3F

    3F

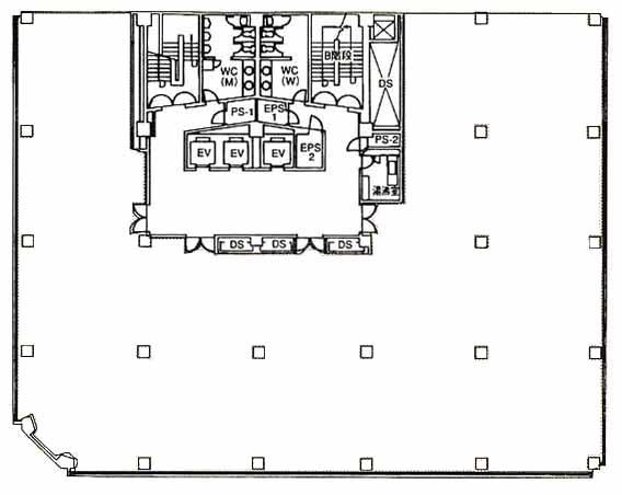
  • 4F

    4F

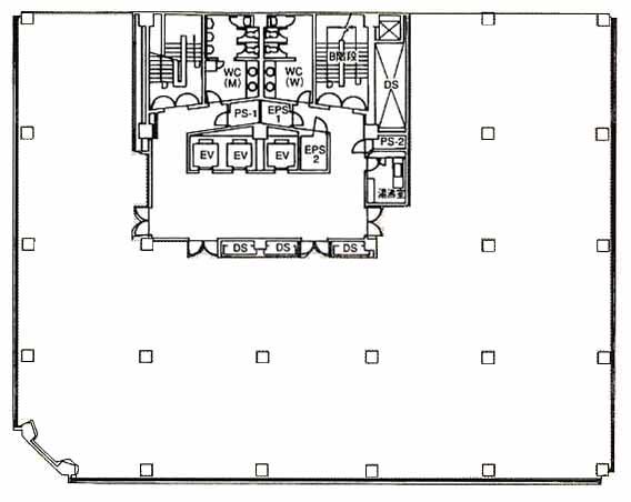
  • 6~7F

    6~7F

  • 8F

    8F

  • 9F

    9F

建物パンフレット

建物パンフレットは作成時点のものであり、また計画段階のものも含まれる為、実際とは異なる場合がございます。

内見やお見積りなどの各種お問い合わせ

全物件
仲介手数料無料
仲介から
入居工事まで
ワンストップで対応
経験豊富なスタッフが
スピード感をもって
対応

周辺での似た条件の物件

非公開物件 多数あり!

お問い合わせフォーム