takeofficeなら掲載物件の仲介手数料は無料です

日本橋ビル(旧:新洋ビル)

住所 東京都中央区日本橋3-8-14
交通 東京メトロ銀座線日本橋」 徒歩3分
JR山手線東京」 徒歩6分
東京メトロ銀座線京橋」 徒歩6分
竣工 1982年09月 構造 SRC
規模 地上6階, 地下1階 耐震基準 新耐震基準
床構造 フリーアクセス 空調設備 個別空調
天井高 2450mm 基準階面積 --
コンセント容量 - 施工会社

最新の募集状況や類似物件については、
こちらにお問い合わせください。

日本橋ビル(旧:新洋ビル) 外観

外観

  • 日本橋ビル(旧:新洋ビル) エントランス写真

    エントランス

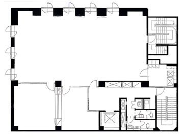
  • 2F

    2F

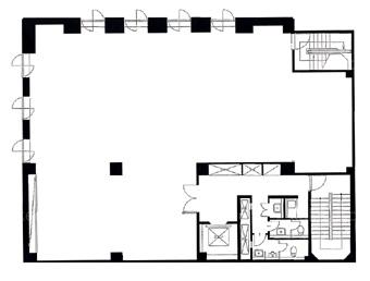
  • 1F

    1F

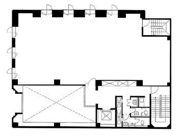
  • 3F

    3F

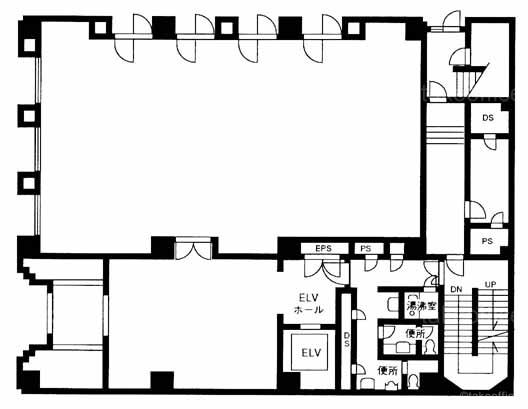
  • 4F

    4F

内見やお見積りなどの各種お問い合わせ

全物件
仲介手数料無料
仲介から
入居工事まで
ワンストップで対応
経験豊富なスタッフが
スピード感をもって
対応

周辺での似た条件の物件

非公開物件 多数あり!

お問い合わせフォーム