takeofficeなら掲載物件の仲介手数料は無料です

八重洲龍名館ビル

住所 東京都中央区八重洲1-3-22
交通 東京メトロ東西線日本橋」 徒歩1分
JR山手線東京」 徒歩2分
東京メトロ半蔵門線三越前」 徒歩3分
竣工 2009年04月 構造 鉄骨造+SRC
規模 地上15階, 地下1階 耐震基準 新耐震基準
床構造 フリーアクセス 70mm 空調設備 個別空調
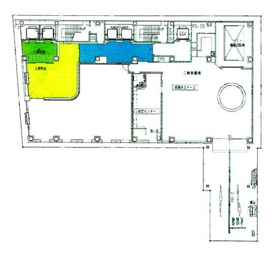
天井高 2650mm 基準階面積 159.3坪(526.61m2)
コンセント容量 50VA/m2 施工会社

最新の募集状況や類似物件については、
こちらにお問い合わせください。

八重洲龍名館ビル 外観

外観

内見やお見積りなどの各種お問い合わせ

全物件
仲介手数料無料
仲介から
入居工事まで
ワンストップで対応
経験豊富なスタッフが
スピード感をもって
対応

周辺での似た条件の物件

非公開物件 多数あり!

お問い合わせフォーム