takeofficeなら掲載物件の仲介手数料は無料です

福清ビル

住所 東京都中央区八重洲1-6-19
交通 JR山手線東京」 徒歩1分
東京メトロ丸ノ内線東京」 徒歩1分
東京メトロ銀座線日本橋」 徒歩2分
竣工 1960年 月 構造 SRC
規模 地上10階, 地下1階 耐震基準 旧耐震基準
床構造 - 空調設備 個別空調
天井高 2370mm 基準階面積 52.73坪(174.31m2)
コンセント容量 - 施工会社

最新の募集状況や類似物件については、
こちらにお問い合わせください。

福清ビル 外観

外観

  • 福清ビル エントランス写真

    エントランス

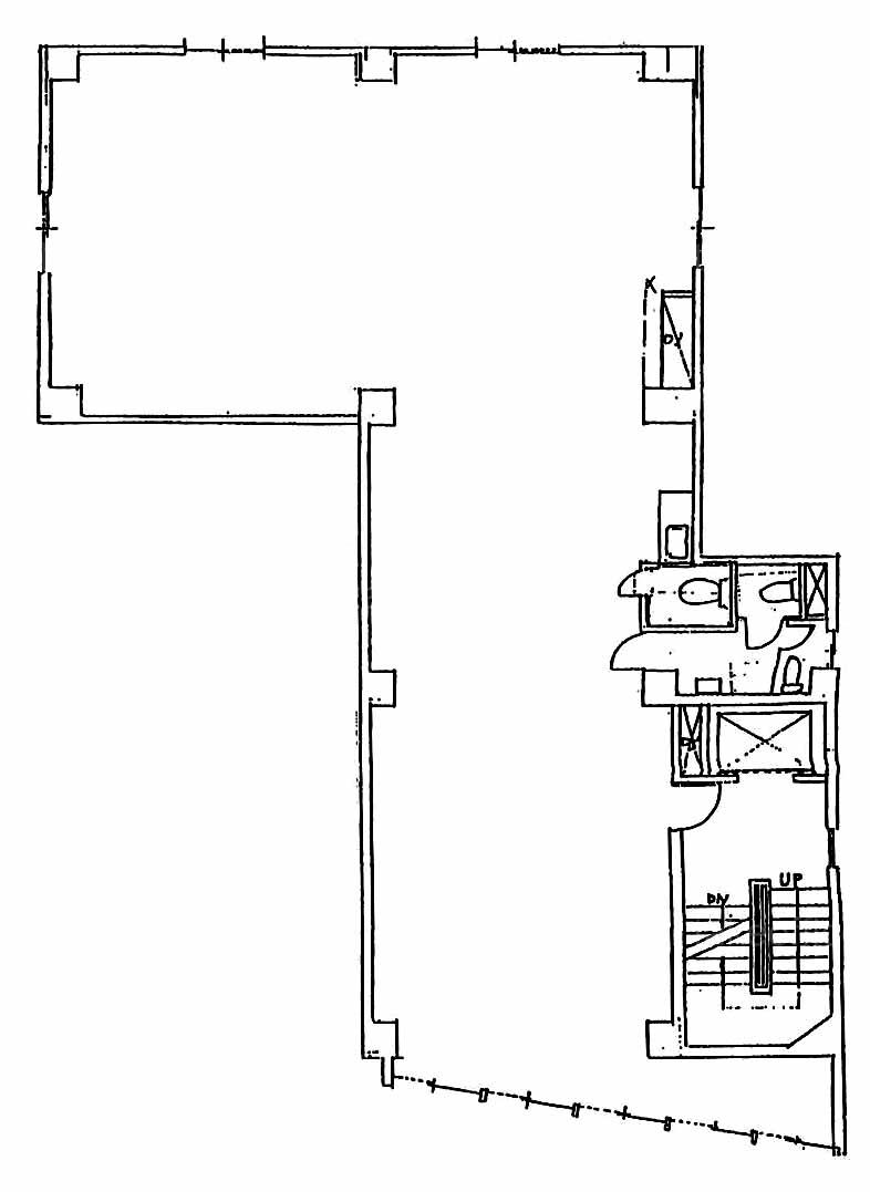
  • 3~7F

    3~7F

  • 1F

    1F

  • 2F

    2F

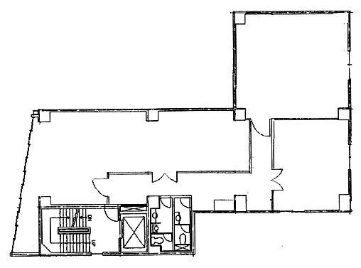
  • 8F

    8F

内見やお見積りなどの各種お問い合わせ

全物件
仲介手数料無料
仲介から
入居工事まで
ワンストップで対応
経験豊富なスタッフが
スピード感をもって
対応

周辺での似た条件の物件

非公開物件 多数あり!

お問い合わせフォーム