takeofficeなら掲載物件の仲介手数料は無料です

八重洲口会館

住所 東京都中央区八重洲1-7-20
交通 JR山手線東京」 徒歩2分
東京メトロ銀座線日本橋」 徒歩2分
東京メトロ銀座線京橋」 徒歩4分
竣工 1965年09月 構造 SRC
規模 地上10階, 地下3階 耐震基準 旧耐震基準
床構造 フリーアクセス 50mm 空調設備 セントラル空調
天井高 - 基準階面積 225.46坪(745.31m2)
コンセント容量 - 施工会社

最新の募集状況や類似物件については、
こちらにお問い合わせください。

八重洲口会館 外観

外観

  • 八重洲口会館 エントランス写真

    エントランス

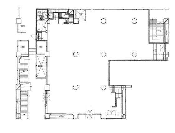
  • 基準階(4~8F)

    基準階(4~8F)

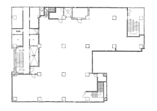
  • 1F

    1F

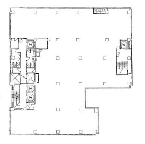
  • 2F

    2F

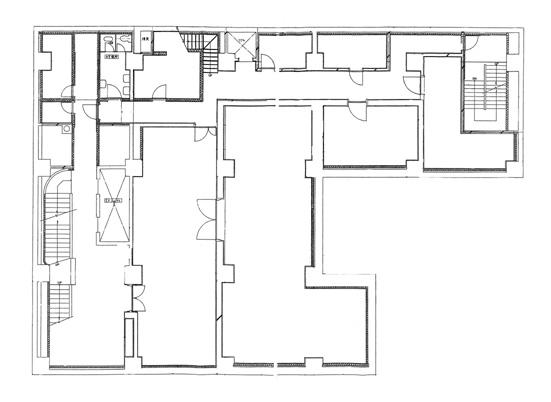
  • B1F

    B1F

内見やお見積りなどの各種お問い合わせ

全物件
仲介手数料無料
仲介から
入居工事まで
ワンストップで対応
経験豊富なスタッフが
スピード感をもって
対応

周辺での似た条件の物件

非公開物件 多数あり!

お問い合わせフォーム