takeofficeなら掲載物件の仲介手数料は無料です

京橋共同ビル

住所 東京都中央区京橋1-5-5
交通 東京メトロ銀座線京橋」 徒歩2分
JR山手線東京」 徒歩5分
東京メトロ丸ノ内線東京」 徒歩7分
竣工 1992年07月 構造 SRC
規模 地上8階, 地下1階 耐震基準 新耐震基準
床構造 - 空調設備 個別空調
天井高 2400mm 基準階面積 29.35坪(97.02m2)
コンセント容量 - 施工会社

最新の募集状況や類似物件については、
こちらにお問い合わせください。

京橋共同ビル 外観

外観

  • 京橋共同ビル エントランス写真

    エントランス

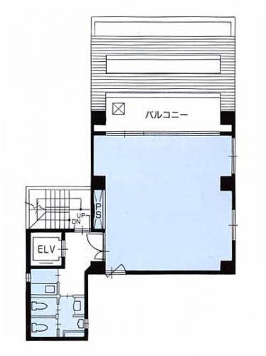
  • 基準階(2~5F)

    基準階(2~5F)

  • 1F

    1F

  • 6F

    6F

  • 7F

    7F

  • 8F

    8F

内見やお見積りなどの各種お問い合わせ

全物件
仲介手数料無料
仲介から
入居工事まで
ワンストップで対応
経験豊富なスタッフが
スピード感をもって
対応

周辺での似た条件の物件

非公開物件 多数あり!

お問い合わせフォーム