takeofficeなら掲載物件の仲介手数料は無料です

京橋日殖ビル

住所 東京都中央区京橋1-8-7
交通 JR中央線東京」 徒歩8分
東京メトロ銀座線京橋」 徒歩3分
都営浅草線宝町」 徒歩3分
竣工 1991年01月 構造 SRC
規模 地上10階, 地下2階 耐震基準 新耐震基準
床構造 フリーアクセス 30mm 空調設備 フロア別空調
天井高 2500mm 基準階面積 90.58坪(299.44m2)
コンセント容量 - 施工会社

最新の募集状況や類似物件については、
こちらにお問い合わせください。

京橋日殖ビル 外観

外観

  • 京橋日殖ビル エントランス写真

    エントランス

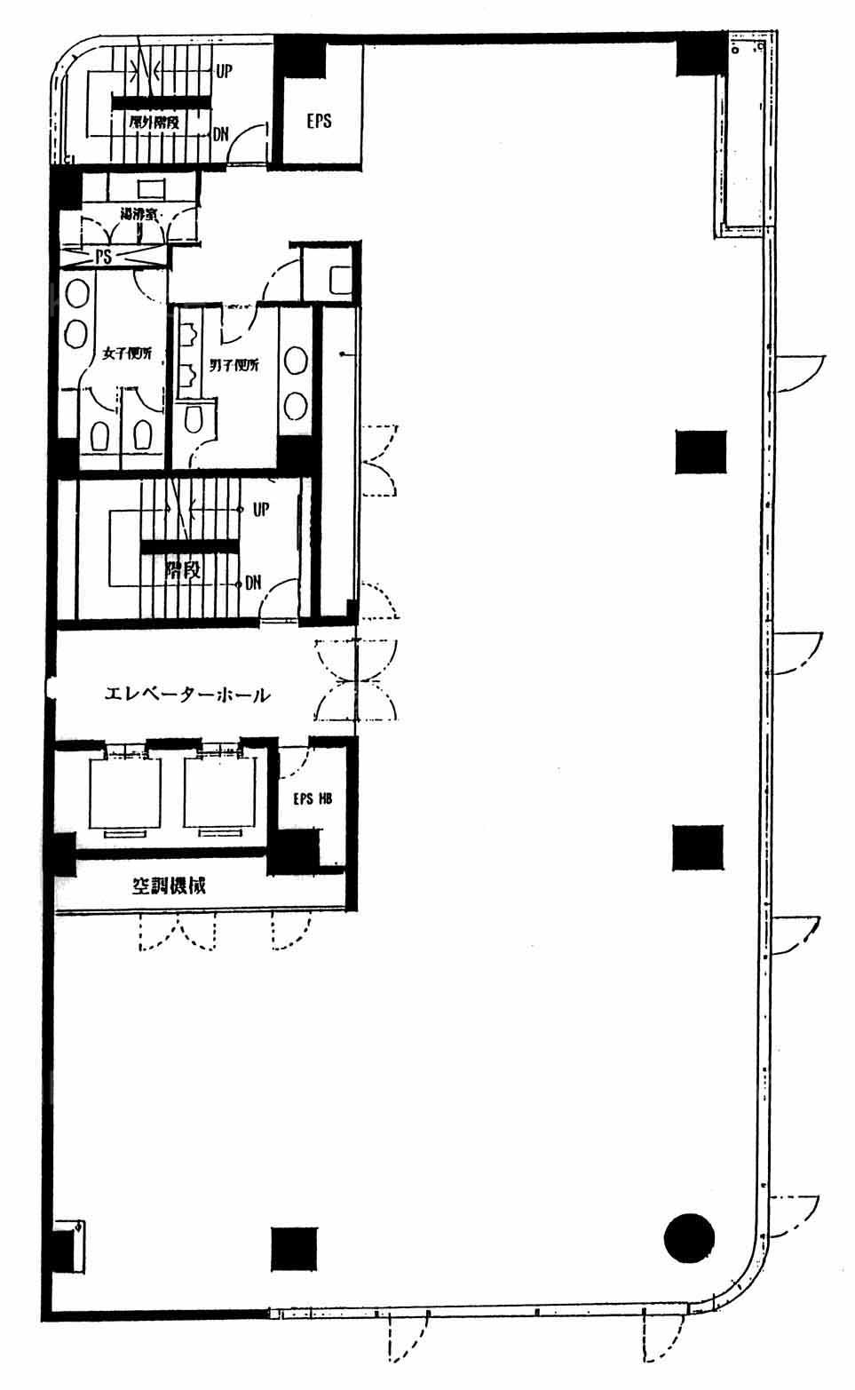
  • 3~8F

    3~8F

  • 1F

    1F

  • 2F

    2F

内見やお見積りなどの各種お問い合わせ

全物件
仲介手数料無料
仲介から
入居工事まで
ワンストップで対応
経験豊富なスタッフが
スピード感をもって
対応

周辺での似た条件の物件

非公開物件 多数あり!

お問い合わせフォーム