takeofficeなら掲載物件の仲介手数料は無料です

両銀東京ビル

住所 東京都中央区京橋2-5-15
交通 都営浅草線宝町」 徒歩1分
JR山手線東京」 徒歩9分
東京メトロ有楽町線銀座一丁目」 徒歩4分
竣工 1983年02月 構造 鉄骨造
規模 地上9階, 地下2階 耐震基準 新耐震基準
床構造 - 空調設備 個別空調
天井高 2450mm 基準階面積 14.07坪(46.51m2)
コンセント容量 - 施工会社

最新の募集状況や類似物件については、
こちらにお問い合わせください。

両銀東京ビル 外観

外観

  • 両銀東京ビル エントランス写真

    エントランス

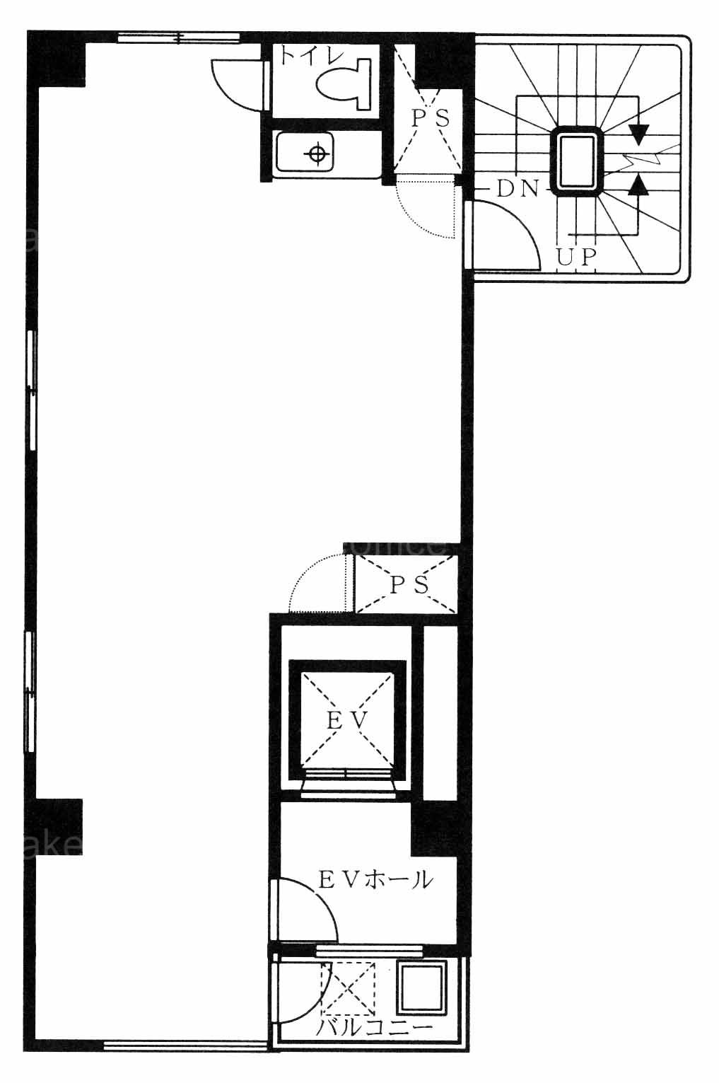
  • 基準階(4~5F)

    基準階(4~5F)

内見やお見積りなどの各種お問い合わせ

全物件
仲介手数料無料
仲介から
入居工事まで
ワンストップで対応
経験豊富なスタッフが
スピード感をもって
対応

周辺での似た条件の物件

非公開物件 多数あり!

お問い合わせフォーム