takeofficeなら掲載物件の仲介手数料は無料です

JBSビル

住所 東京都中央区京橋2-6-6
交通 東京メトロ銀座線京橋」 徒歩2分
都営浅草線宝町」 徒歩2分
JR山手線東京」 徒歩5分
竣工 1970年06月 構造 -
規模 地上6階 耐震基準 新耐震基準
床構造 フリーアクセス 空調設備 個別空調
天井高 - 基準階面積 --
コンセント容量 - 施工会社

最新の募集状況や類似物件については、
こちらにお問い合わせください。

JBSビル 外観

外観

  • JBSビル エントランス写真

    エントランス

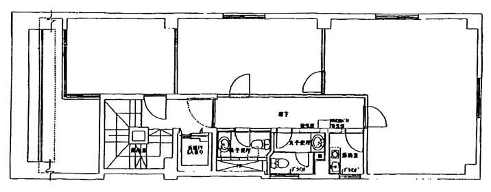
  • 4F

    4F

  • 5F

    5F

内見やお見積りなどの各種お問い合わせ

全物件
仲介手数料無料
仲介から
入居工事まで
ワンストップで対応
経験豊富なスタッフが
スピード感をもって
対応

周辺での似た条件の物件

非公開物件 多数あり!

お問い合わせフォーム