takeofficeなら掲載物件の仲介手数料は無料です

昭和ビル

住所 東京都中央区京橋2-8-18
交通 東京メトロ銀座線京橋」 徒歩1分
都営浅草線宝町」 徒歩4分
JR山手線東京」 徒歩7分
竣工 1962年12月 構造 鉄骨造+SRC
規模 地上10階, 地下4階 耐震基準 旧耐震基準
床構造 フリーアクセス 50mm 空調設備 個別空調
天井高 2500mm 基準階面積 169.25坪(559.5m2)
コンセント容量 - 施工会社

最新の募集状況や類似物件については、
こちらにお問い合わせください。

昭和ビル 外観

外観

  • 昭和ビル エントランス写真

    エントランス

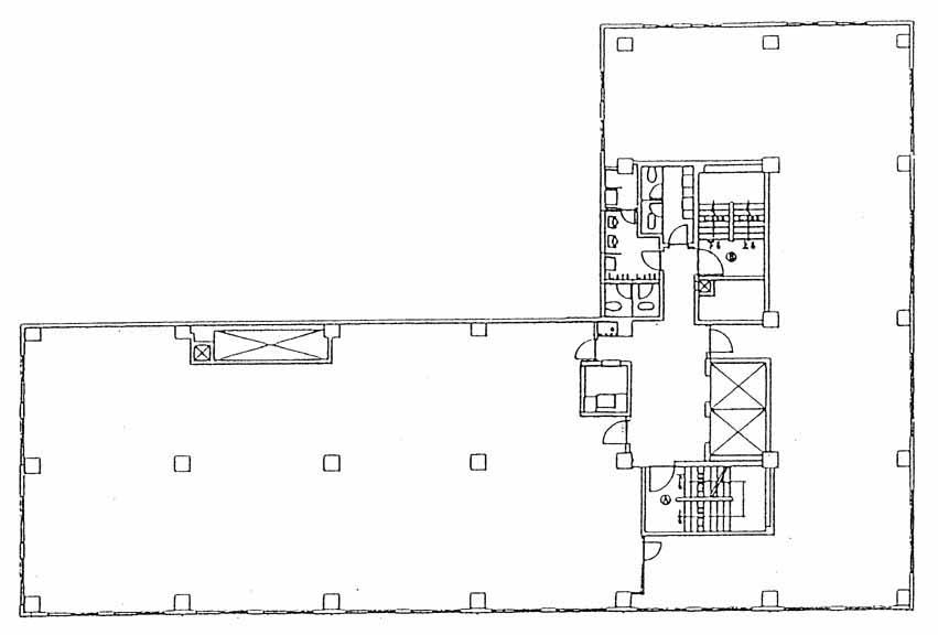
  • 基準階(4~10F)

    基準階(4~10F)

内見やお見積りなどの各種お問い合わせ

全物件
仲介手数料無料
仲介から
入居工事まで
ワンストップで対応
経験豊富なスタッフが
スピード感をもって
対応

周辺での似た条件の物件

非公開物件 多数あり!

お問い合わせフォーム