takeofficeなら掲載物件の仲介手数料は無料です

明海京橋ビル

住所 東京都中央区京橋2-18-2
交通 都営浅草線宝町」 徒歩1分
東京メトロ銀座線京橋」 徒歩5分
東京メトロ日比谷線八丁堀」 徒歩5分
竣工 1985年05月 構造 SRC
規模 地上8階, 地下1階 耐震基準 新耐震基準
床構造 フリーアクセス 50mm 空調設備 個別空調
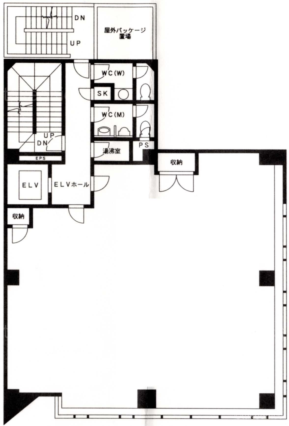
天井高 2450mm 基準階面積 58.28坪(192.66m2)
コンセント容量 - 施工会社

最新の募集状況や類似物件については、
こちらにお問い合わせください。

明海京橋ビル 外観

外観

  • 明海京橋ビル エントランス写真

    エントランス

  • 基準階(2~8F)

    基準階(2~8F)

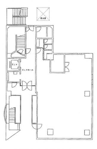
  • 1F

    1F

  • B1F

    B1F

内見やお見積りなどの各種お問い合わせ

全物件
仲介手数料無料
仲介から
入居工事まで
ワンストップで対応
経験豊富なスタッフが
スピード感をもって
対応

周辺での似た条件の物件

非公開物件 多数あり!

お問い合わせフォーム