takeofficeなら掲載物件の仲介手数料は無料です

竹河岸ビル

住所 東京都中央区京橋3-5-3
交通 東京メトロ銀座線京橋」 徒歩2分
都営浅草線宝町」 徒歩3分
東京メトロ有楽町線銀座一丁目」 徒歩4分
竣工 1994年06月 構造 SRC
規模 地上8階, 地下0階 耐震基準 新耐震基準
床構造 - 空調設備 個別空調
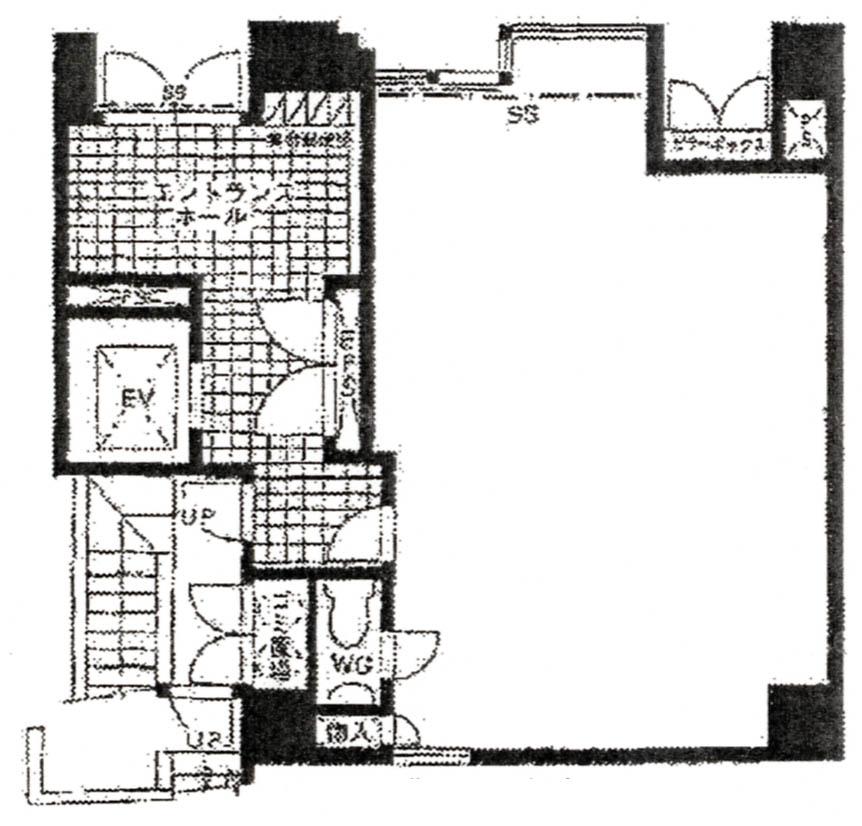
天井高 2500mm 基準階面積 21.14坪(69.88m2)
コンセント容量 - 施工会社

最新の募集状況や類似物件については、
こちらにお問い合わせください。

竹河岸ビル 外観

外観

  • 竹河岸ビル エントランス写真

    エントランス

  • 1F

    1F

内見やお見積りなどの各種お問い合わせ

全物件
仲介手数料無料
仲介から
入居工事まで
ワンストップで対応
経験豊富なスタッフが
スピード感をもって
対応

周辺での似た条件の物件

非公開物件 多数あり!

お問い合わせフォーム