takeofficeなら掲載物件の仲介手数料は無料です

東京駅前ビル

住所 東京都中央区八重洲2-1-5
交通 JR山手線東京」 徒歩2分
東京メトロ銀座線日本橋」 徒歩3分
東京メトロ銀座線京橋」 徒歩4分
竣工 1974年11月 構造 SRC
規模 地上9階, 地下2階 耐震基準 旧耐震基準
床構造 - 空調設備 個別空調
天井高 2500mm 基準階面積 85.4坪(282.31m2)
コンセント容量 - 施工会社

最新の募集状況や類似物件については、
こちらにお問い合わせください。

東京駅前ビル 外観

外観

  • 東京駅前ビル エントランス写真

    エントランス

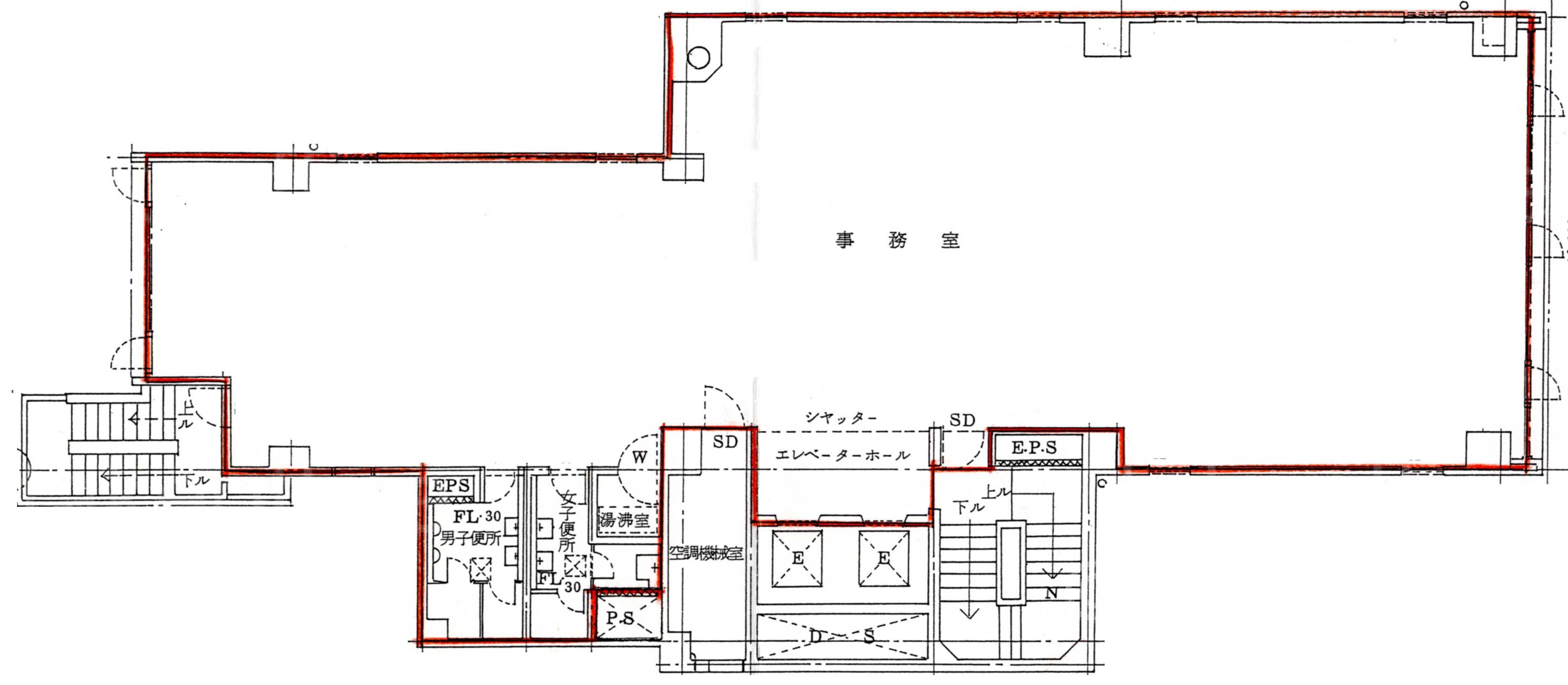
  • 基準階 2F~9F

    基準階 2F~9F

内見やお見積りなどの各種お問い合わせ

全物件
仲介手数料無料
仲介から
入居工事まで
ワンストップで対応
経験豊富なスタッフが
スピード感をもって
対応

周辺での似た条件の物件

非公開物件 多数あり!

お問い合わせフォーム