takeofficeなら掲載物件の仲介手数料は無料です

住友不動産八重洲ビル(ユニゾ八重洲ビル)

住所 東京都中央区八重洲2-4-1
交通 JR山手線東京」 徒歩3分
東京メトロ銀座線京橋」 徒歩3分
都営浅草線宝町」 徒歩5分
竣工 1967年10月 構造 SRC
規模 地上9階, 地下4階 耐震基準 新耐震基準
床構造 フリーアクセス 100mm 空調設備 個別空調
天井高 2500mm 基準階面積 723.6坪(2392.07m2)
コンセント容量 60VA/m2 施工会社

最新の募集状況や類似物件については、
こちらにお問い合わせください。

住友不動産八重洲ビル(ユニゾ八重洲ビル) 外観

外観

  • NOW PRINTING

    エントランス

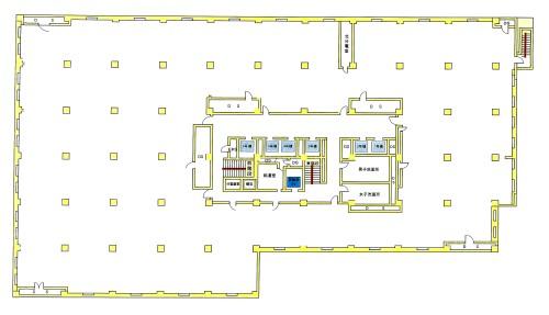
  • 4F

    4F

  • 1F

    1F

  • 3F

    3F

  • 5F

    5F

  • 6F

    6F

  • 7F

    7F

  • 8F

    8F

  • B1F

    B1F

  • B2F

    B2F

  • B3F

    B3F

建物パンフレット

建物パンフレットは作成時点のものであり、また計画段階のものも含まれる為、実際とは異なる場合がございます。

内見やお見積りなどの各種お問い合わせ

全物件
仲介手数料無料
仲介から
入居工事まで
ワンストップで対応
経験豊富なスタッフが
スピード感をもって
対応

周辺での似た条件の物件

非公開物件 多数あり!

お問い合わせフォーム