takeofficeなら掲載物件の仲介手数料は無料です

ユニゾ八重洲2丁目ビル

住所 東京都中央区八重洲2-4-13
交通 JR山手線東京」 徒歩4分
東京メトロ銀座線京橋」 徒歩2分
都営浅草線宝町」 徒歩5分
竣工 1993年11月 構造 鉄骨造+SRC
規模 地上10階, 地下3階 耐震基準 新耐震基準
床構造 フリーアクセス 空調設備 個別空調
天井高 2470mm 基準階面積 82.61坪(273.09m2)
コンセント容量 - 施工会社

最新の募集状況や類似物件については、
こちらにお問い合わせください。

ユニゾ八重洲2丁目ビル 外観

外観

  • ユニゾ八重洲2丁目ビル エントランス写真

    エントランス

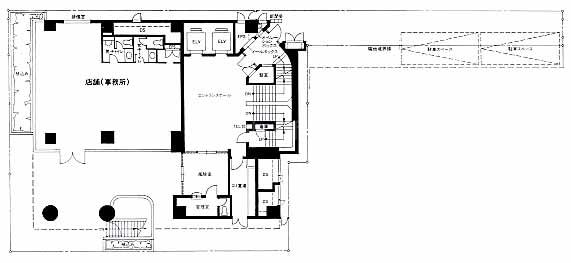
  • 基準階

    基準階

  • 1F

    1F

  • 6~10F

    6~10F

建物パンフレット

建物パンフレットは作成時点のものであり、また計画段階のものも含まれる為、実際とは異なる場合がございます。

内見やお見積りなどの各種お問い合わせ

全物件
仲介手数料無料
仲介から
入居工事まで
ワンストップで対応
経験豊富なスタッフが
スピード感をもって
対応

周辺での似た条件の物件

非公開物件 多数あり!

お問い合わせフォーム