takeofficeなら掲載物件の仲介手数料は無料です

八重洲共同ビル

住所 東京都中央区八重洲2-5-9
交通 JR山手線東京」 徒歩4分
東京メトロ銀座線京橋」 徒歩2分
都営浅草線宝町」 徒歩5分
竣工 1992年10月 構造 SRC
規模 地上6階, 地下2階 耐震基準 新耐震基準
床構造 フリーアクセス 40mm 空調設備 個別空調
天井高 2450mm 基準階面積 58.05坪(191.9m2)
コンセント容量 60VA/m2 施工会社

最新の募集状況や類似物件については、
こちらにお問い合わせください。

八重洲共同ビル 外観

外観

  • 八重洲共同ビル エントランス写真

    エントランス

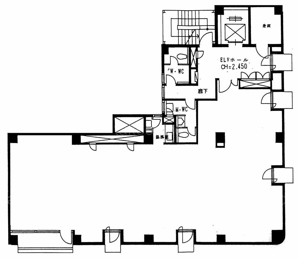
  • 基準階(3~5F)

    基準階(3~5F)

  • 1F

    1F

  • 2F

    2F

  • 6F

    6F

内見やお見積りなどの各種お問い合わせ

全物件
仲介手数料無料
仲介から
入居工事まで
ワンストップで対応
経験豊富なスタッフが
スピード感をもって
対応

周辺での似た条件の物件

非公開物件 多数あり!

お問い合わせフォーム