takeofficeなら掲載物件の仲介手数料は無料です

京橋2丁目西地区第一種市街地再開発事業(明治屋棟)

住所 東京都中央区京橋2-2-8
交通 東京メトロ銀座線京橋」 徒歩1分
都営浅草線宝町」 徒歩5分
JR山手線東京」 徒歩5分
竣工 1933年 月 構造 RC
規模 地上8階, 地下2階 耐震基準 旧耐震基準
床構造 フリーアクセス 50mm 空調設備 個別空調
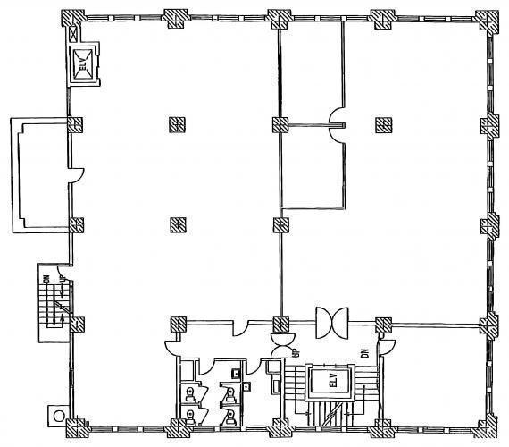
天井高 2400mm 基準階面積 121.22坪(400.73m2)
コンセント容量 40VA/m2 施工会社

最新の募集状況や類似物件については、
こちらにお問い合わせください。

京橋2丁目西地区第一種市街地再開発事業(明治屋棟) 外観

外観

  • NOW PRINTING

    エントランス

  • 基準階

    基準階

内見やお見積りなどの各種お問い合わせ

全物件
仲介手数料無料
仲介から
入居工事まで
ワンストップで対応
経験豊富なスタッフが
スピード感をもって
対応

周辺での似た条件の物件

非公開物件 多数あり!

お問い合わせフォーム