takeofficeなら掲載物件の仲介手数料は無料です

h+ビル

住所 東京都中央区八重洲2-4-11
交通 東京メトロ銀座線京橋」 徒歩2分
JR山手線東京」 徒歩5分
竣工 2007年09月 構造 鉄骨造
規模 地上10階, 地下1階 耐震基準 新耐震基準
床構造 フリーアクセス 70mm 空調設備 個別空調
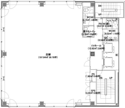
天井高 2700mm 基準階面積 68.45坪(226.28m2)
コンセント容量 70VA/m2 施工会社 鹿島建設

最新の募集状況や類似物件については、
こちらにお問い合わせください。

h+ビル 外観

外観

建物パンフレット

建物パンフレットは作成時点のものであり、また計画段階のものも含まれる為、実際とは異なる場合がございます。

内見やお見積りなどの各種お問い合わせ

全物件
仲介手数料無料
仲介から
入居工事まで
ワンストップで対応
経験豊富なスタッフが
スピード感をもって
対応

周辺での似た条件の物件

非公開物件 多数あり!

お問い合わせフォーム