takeofficeなら掲載物件の仲介手数料は無料です

京橋創生館

住所 東京都中央区京橋2-5-18
交通 東京メトロ銀座線京橋」 徒歩1分
JR山手線東京」 徒歩10分
都営浅草線宝町」 徒歩3分
竣工 2008年12月 構造 鉄骨造+RC
規模 地上13階, 地下1階 耐震基準 新耐震基準
床構造 フリーアクセス 100mm 空調設備 個別空調
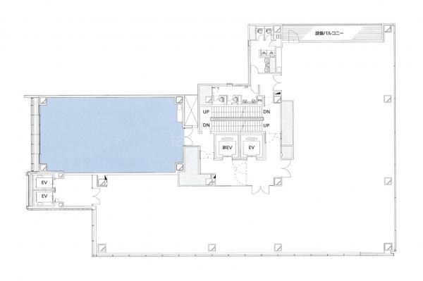
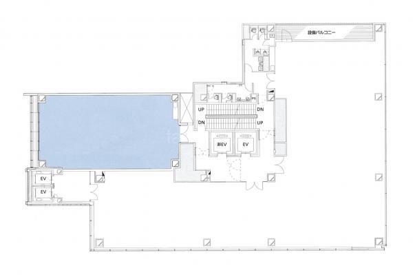
天井高 2750mm 基準階面積 182.61坪(603.67m2)
コンセント容量 - 施工会社 鹿島・日本建設共同企業体

最新の募集状況や類似物件については、
こちらにお問い合わせください。

京橋創生館 外観

外観

建物パンフレット

建物パンフレットは作成時点のものであり、また計画段階のものも含まれる為、実際とは異なる場合がございます。

内見やお見積りなどの各種お問い合わせ

全物件
仲介手数料無料
仲介から
入居工事まで
ワンストップで対応
経験豊富なスタッフが
スピード感をもって
対応

周辺での似た条件の物件

非公開物件 多数あり!

お問い合わせフォーム