takeofficeなら掲載物件の仲介手数料は無料です

NEWS X

住所 東京都中央区京橋2-12-2
交通 都営浅草線宝町」 徒歩1分
東京メトロ銀座線京橋」 徒歩2分
東京メトロ有楽町線銀座一丁目」 徒歩7分
竣工 2014年09月 構造 RC
規模 地上10階 耐震基準 新耐震基準
床構造 フリーアクセス 10mm 空調設備 個別空調
天井高 - 基準階面積 24.98坪(82.58m2)
コンセント容量 - 施工会社

最新の募集状況や類似物件については、
こちらにお問い合わせください。

NEWS X 外観

外観

  • NEWS X エントランス写真

    エントランス

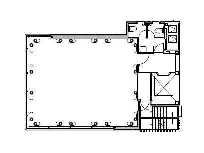
  • 基準階

    基準階

内見やお見積りなどの各種お問い合わせ

全物件
仲介手数料無料
仲介から
入居工事まで
ワンストップで対応
経験豊富なスタッフが
スピード感をもって
対応

周辺での似た条件の物件

非公開物件 多数あり!

お問い合わせフォーム