takeofficeなら掲載物件の仲介手数料は無料です

石川ビル

住所 東京都中央区新川2-1-9
交通 東京メトロ東西線茅場町」 徒歩4分
東京メトロ日比谷線八丁堀」 徒歩5分
都営浅草線日本橋」 徒歩11分
竣工 1984年 月 構造 SRC
規模 地上7階 耐震基準 新耐震基準
床構造 フリーアクセス 60mm 空調設備 個別空調
天井高 2400mm 基準階面積 87.03坪(287.7m2)
コンセント容量 - 施工会社

最新の募集状況や類似物件については、
こちらにお問い合わせください。

石川ビル 外観

外観

  • 石川ビル エントランス写真

    エントランス

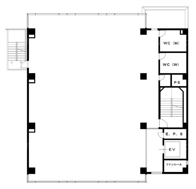
  • 基準階(2~6F)

    基準階(2~6F)

  • 1F

    1F

内見やお見積りなどの各種お問い合わせ

全物件
仲介手数料無料
仲介から
入居工事まで
ワンストップで対応
経験豊富なスタッフが
スピード感をもって
対応

周辺での似た条件の物件

非公開物件 多数あり!

お問い合わせフォーム