takeofficeなら掲載物件の仲介手数料は無料です

兜町ビル

住所 東京都中央区日本橋兜町4-3
交通 東京メトロ東西線茅場町」 徒歩5分
東京メトロ半蔵門線三越前」 徒歩8分
竣工 1976年12月 構造 SRC
規模 地上8階, 地下2階 耐震基準 新耐震基準
床構造 フリーアクセス 空調設備 セントラル空調
天井高 - 基準階面積 --
コンセント容量 - 施工会社

最新の募集状況や類似物件については、
こちらにお問い合わせください。

兜町ビル 外観

外観

  • NOW PRINTING

    エントランス

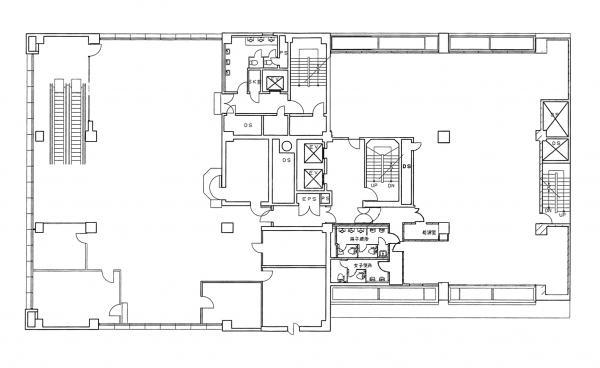
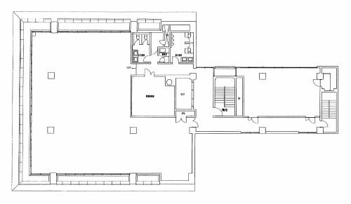
  • 2F

    2F

  • 1F

    1F

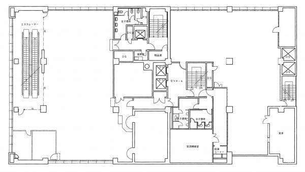
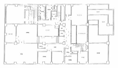
  • 3F

    3F

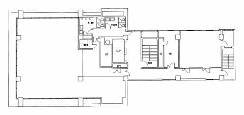
  • 4F

    4F

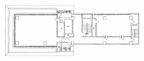
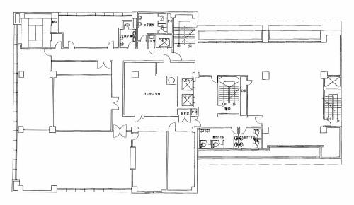
  • 5F

    5F

  • 6F

    6F

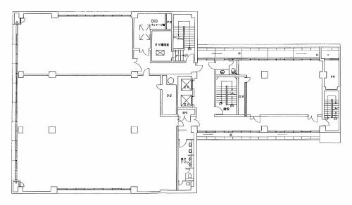
  • 7F

    7F

  • 8F

    8F

  • B1F

    B1F

内見やお見積りなどの各種お問い合わせ

全物件
仲介手数料無料
仲介から
入居工事まで
ワンストップで対応
経験豊富なスタッフが
スピード感をもって
対応

周辺での似た条件の物件

非公開物件 多数あり!

お問い合わせフォーム