takeofficeなら掲載物件の仲介手数料は無料です

兜町第6葉山ビル

住所 東京都中央区日本橋兜町17-2
交通 東京メトロ銀座線日本橋」 徒歩5分
東京メトロ東西線茅場町」 徒歩6分
東京メトロ日比谷線八丁堀」 徒歩7分
竣工 1988年04月 構造 RC+SRC
規模 地上6階, 地下1階 耐震基準 新耐震基準
床構造 フリーアクセス 空調設備 個別空調
天井高 - 基準階面積 72.58坪(239.93m2)
コンセント容量 - 施工会社

最新の募集状況や類似物件については、
こちらにお問い合わせください。

兜町第6葉山ビル 外観

外観

  • 兜町第6葉山ビル エントランス写真

    エントランス

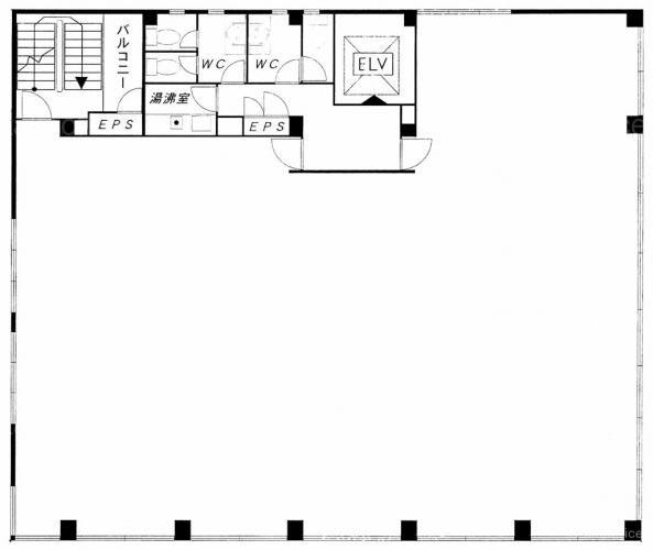
  • 基準階(3~4F)

    基準階(3~4F)

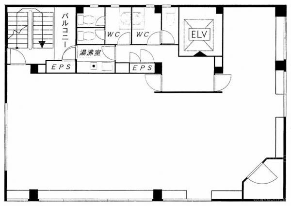
  • 2F

    2F

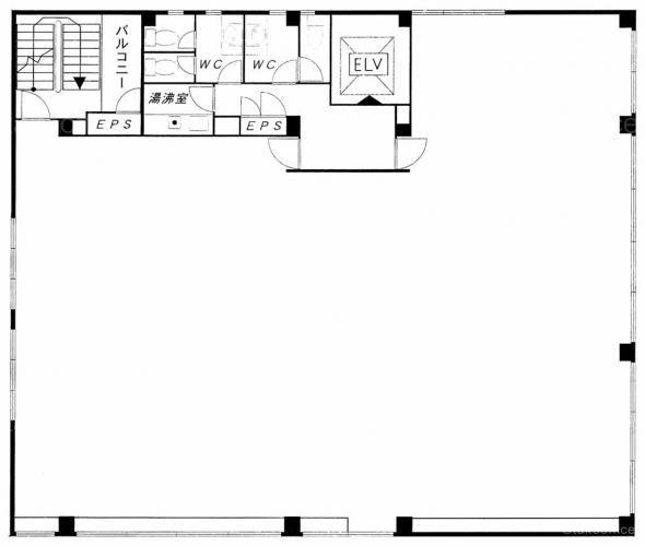
  • 5F

    5F

内見やお見積りなどの各種お問い合わせ

全物件
仲介手数料無料
仲介から
入居工事まで
ワンストップで対応
経験豊富なスタッフが
スピード感をもって
対応

周辺での似た条件の物件

非公開物件 多数あり!

お問い合わせフォーム