takeofficeなら掲載物件の仲介手数料は無料です

日本橋兜町ファースト

住所 東京都中央区日本橋兜町20-6
交通 東京メトロ日比谷線茅場町」 徒歩4分
東京メトロ日比谷線八丁堀」 徒歩5分
JR山手線東京」 徒歩8分
竣工 1991年02月 構造 SRC
規模 地上8階 耐震基準 新耐震基準
床構造 フリーアクセス 空調設備 個別空調
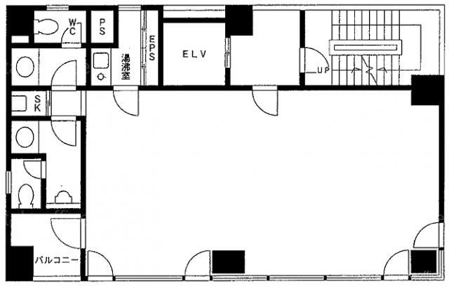
天井高 3060mm 基準階面積 24.53坪(81.09m2)
コンセント容量 - 施工会社

最新の募集状況や類似物件については、
こちらにお問い合わせください。

日本橋兜町ファースト 外観

外観

内見やお見積りなどの各種お問い合わせ

全物件
仲介手数料無料
仲介から
入居工事まで
ワンストップで対応
経験豊富なスタッフが
スピード感をもって
対応

周辺での似た条件の物件

非公開物件 多数あり!

お問い合わせフォーム