takeofficeなら掲載物件の仲介手数料は無料です

共同ビル(茅場町駅前)

住所 東京都中央区日本橋茅場町1-6-12
交通 東京メトロ東西線茅場町」 徒歩1分
東京メトロ銀座線日本橋」 徒歩4分
JR京葉線八丁堀」 徒歩10分
竣工 1965年11月 構造 SRC
規模 地上12階, 地下3階 耐震基準 旧耐震基準
床構造 - 空調設備 セントラル空調
天井高 2600mm 基準階面積 249坪(824m2)
コンセント容量 - 施工会社

最新の募集状況や類似物件については、
こちらにお問い合わせください。

共同ビル(茅場町駅前) 外観

外観

  • 共同ビル(茅場町駅前) エントランス写真

    エントランス

  • 2F

    2F

  • 1F

    1F

  • 3F

    3F

  • 4F

    4F

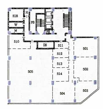
  • 5F

    5F

  • 6F

    6F

  • 7F

    7F

  • 8F

    8F

  • 9F

    9F

内見やお見積りなどの各種お問い合わせ

全物件
仲介手数料無料
仲介から
入居工事まで
ワンストップで対応
経験豊富なスタッフが
スピード感をもって
対応

周辺での似た条件の物件

非公開物件 多数あり!

お問い合わせフォーム