takeofficeなら掲載物件の仲介手数料は無料です

岩崎ビル

住所 東京都中央区日本橋茅場町1-11-6
交通 東京メトロ東西線茅場町」 徒歩1分
JR京葉線八丁堀」 徒歩7分
東京メトロ銀座線日本橋」 徒歩8分
竣工 1975年11月 構造 鉄骨造
規模 地上4階 耐震基準 旧耐震基準
床構造 - 空調設備 個別空調
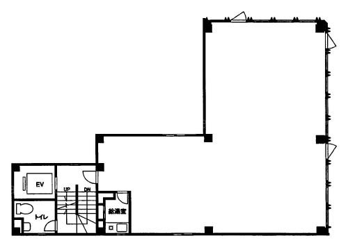
天井高 2350mm 基準階面積 32.34坪(106.91m2)
コンセント容量 - 施工会社

最新の募集状況や類似物件については、
こちらにお問い合わせください。

岩崎ビル 外観

外観

  • 岩崎ビル エントランス写真

    エントランス

  • 基準階

    基準階

内見やお見積りなどの各種お問い合わせ

全物件
仲介手数料無料
仲介から
入居工事まで
ワンストップで対応
経験豊富なスタッフが
スピード感をもって
対応

周辺での似た条件の物件

非公開物件 多数あり!

お問い合わせフォーム