takeofficeなら掲載物件の仲介手数料は無料です

コニーセントラルビル

住所 東京都中央区日本橋茅場町2-7-9
交通 東京メトロ東西線茅場町」 徒歩1分
都営浅草線日本橋」 徒歩5分
JR京葉線八丁堀」 徒歩5分
竣工 1973年10月 構造 SRC
規模 地上6階 耐震基準 旧耐震基準
床構造 - 空調設備 個別空調
天井高 2500mm 基準階面積 32.79坪(108.4m2)
コンセント容量 - 施工会社

最新の募集状況や類似物件については、
こちらにお問い合わせください。

コニーセントラルビル 外観

外観

  • コニーセントラルビル エントランス写真

    エントランス

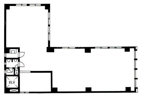
  • 4F、5F

    4F、5F

内見やお見積りなどの各種お問い合わせ

全物件
仲介手数料無料
仲介から
入居工事まで
ワンストップで対応
経験豊富なスタッフが
スピード感をもって
対応

周辺での似た条件の物件

非公開物件 多数あり!

お問い合わせフォーム