takeofficeなら掲載物件の仲介手数料は無料です

日本橋イヅミビル

住所 東京都中央区日本橋茅場町2-17-9
交通 東京メトロ東西線茅場町」 徒歩2分
東京メトロ日比谷線八丁堀」 徒歩7分
都営浅草線日本橋」 徒歩8分
竣工 1984年03月 構造 SRC
規模 地上8階, 地下1階 耐震基準 新耐震基準
床構造 - 空調設備 個別空調
天井高 - 基準階面積 51.72坪(170.98m2)
コンセント容量 - 施工会社

最新の募集状況や類似物件については、
こちらにお問い合わせください。

日本橋イヅミビル 外観

外観

  • NOW PRINTING

    エントランス

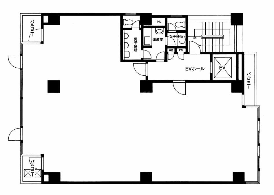
  • 基準階(3~4F)

    基準階(3~4F)

内見やお見積りなどの各種お問い合わせ

全物件
仲介手数料無料
仲介から
入居工事まで
ワンストップで対応
経験豊富なスタッフが
スピード感をもって
対応

周辺での似た条件の物件

非公開物件 多数あり!

お問い合わせフォーム