takeofficeなら掲載物件の仲介手数料は無料です

アロマビル

住所 東京都中央区日本橋茅場町3-5-2
交通 東京メトロ東西線茅場町」 徒歩1分
東京メトロ日比谷線八丁堀」 徒歩6分
都営浅草線日本橋」 徒歩9分
竣工 1964年03月 構造 鉄骨造
規模 地上8階 耐震基準 旧耐震基準
床構造 - 空調設備 個別空調
天井高 - 基準階面積 --
コンセント容量 - 施工会社

最新の募集状況や類似物件については、
こちらにお問い合わせください。

アロマビル 外観

外観

  • アロマビル エントランス写真

    エントランス

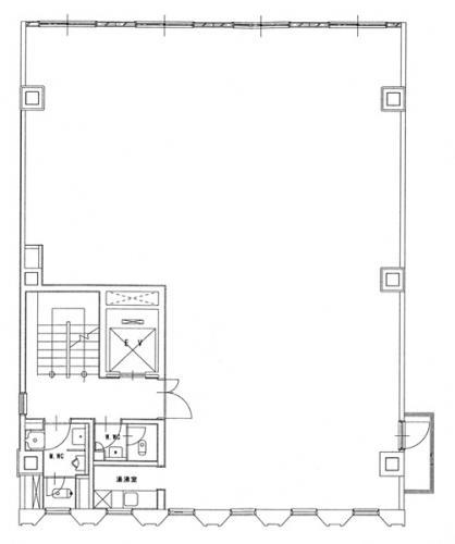
  • 2~5F

    2~5F

  • 7F

    7F

内見やお見積りなどの各種お問い合わせ

全物件
仲介手数料無料
仲介から
入居工事まで
ワンストップで対応
経験豊富なスタッフが
スピード感をもって
対応

周辺での似た条件の物件

非公開物件 多数あり!

お問い合わせフォーム