takeofficeなら掲載物件の仲介手数料は無料です

幸和ビル

住所 東京都中央区八丁堀1-4-5
交通 東京メトロ日比谷線八丁堀」 徒歩3分
JR京葉線八丁堀」 徒歩3分
東京メトロ東西線茅場町」 徒歩4分
竣工 1976年02月 構造 SRC
規模 地上10階 耐震基準 旧耐震基準
床構造 - 空調設備 フロア別空調
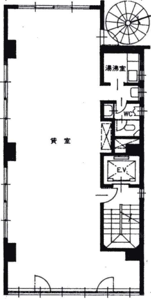
天井高 2500mm 基準階面積 26坪(85m2)
コンセント容量 - 施工会社

最新の募集状況や類似物件については、
こちらにお問い合わせください。

幸和ビル 外観

外観

  • 幸和ビル エントランス写真

    エントランス

  • 2F~6F

    2F~6F

  • 8F

    8F

内見やお見積りなどの各種お問い合わせ

全物件
仲介手数料無料
仲介から
入居工事まで
ワンストップで対応
経験豊富なスタッフが
スピード感をもって
対応

周辺での似た条件の物件

非公開物件 多数あり!

お問い合わせフォーム