takeofficeなら掲載物件の仲介手数料は無料です

開成ビル

住所 東京都中央区八丁堀2-15-1
交通 JR京葉線八丁堀」 徒歩4分
東京メトロ東西線茅場町」 徒歩5分
都営浅草線宝町」 徒歩7分
竣工 1985年06月 構造 RC
規模 地上4階 耐震基準 新耐震基準
床構造 - 空調設備 個別空調
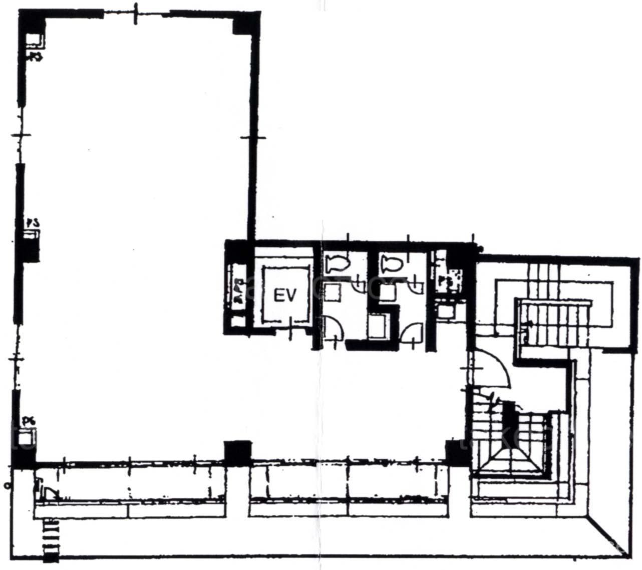
天井高 2400mm 基準階面積 50.4坪(166.61m2)
コンセント容量 - 施工会社

最新の募集状況や類似物件については、
こちらにお問い合わせください。

開成ビル 外観

外観

  • 開成ビル エントランス写真

    エントランス

内見やお見積りなどの各種お問い合わせ

全物件
仲介手数料無料
仲介から
入居工事まで
ワンストップで対応
経験豊富なスタッフが
スピード感をもって
対応

周辺での似た条件の物件

非公開物件 多数あり!

お問い合わせフォーム