takeofficeなら掲載物件の仲介手数料は無料です

コア京橋ビル

住所 東京都中央区八丁堀2-21-2
交通 東京メトロ日比谷線八丁堀」 徒歩1分
JR京葉線八丁堀」 徒歩2分
都営浅草線宝町」 徒歩6分
竣工 1998年02月 構造 SRC
規模 地上9階, 地下1階 耐震基準 新耐震基準
床構造 フリーアクセス 50mm 空調設備 個別空調
天井高 2450mm 基準階面積 85.83坪(283.74m2)
コンセント容量 - 施工会社

最新の募集状況や類似物件については、
こちらにお問い合わせください。

コア京橋ビル 外観

外観

  • コア京橋ビル エントランス写真

    エントランス

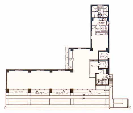
  • 基準階(2~6F)

    基準階(2~6F)

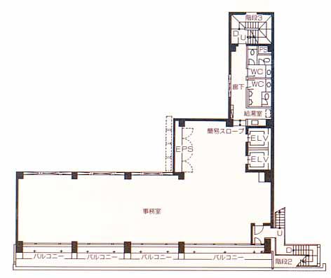
  • 1F

    1F

  • 7F

    7F

  • 8F

    8F

  • 9F

    9F

建物パンフレット

建物パンフレットは作成時点のものであり、また計画段階のものも含まれる為、実際とは異なる場合がございます。

内見やお見積りなどの各種お問い合わせ

全物件
仲介手数料無料
仲介から
入居工事まで
ワンストップで対応
経験豊富なスタッフが
スピード感をもって
対応

周辺での似た条件の物件

非公開物件 多数あり!

お問い合わせフォーム