takeofficeなら掲載物件の仲介手数料は無料です

内外ビル

住所 東京都中央区八丁堀2-22-8
交通 東京メトロ日比谷線八丁堀」 徒歩1分
JR京葉線八丁堀」 徒歩3分
都営浅草線宝町」 徒歩8分
竣工 1985年12月 構造 SRC
規模 地上8階 耐震基準 新耐震基準
床構造 フリーアクセス 50mm 空調設備 個別空調
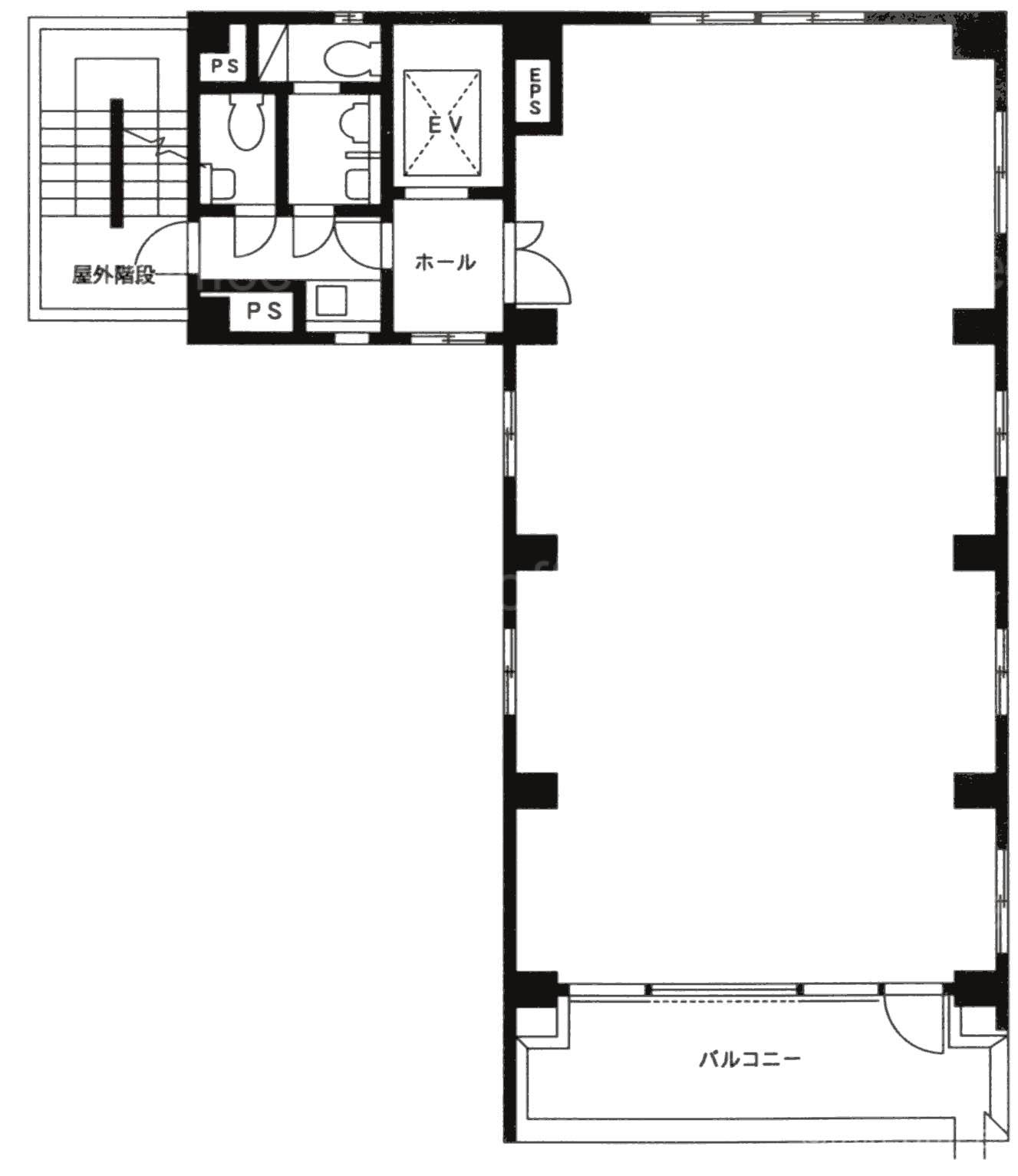
天井高 2350mm 基準階面積 37.42坪(123.7m2)
コンセント容量 - 施工会社

最新の募集状況や類似物件については、
こちらにお問い合わせください。

内外ビル 外観

外観

  • 内外ビル エントランス写真

    エントランス

  • 5F

    5F

内見やお見積りなどの各種お問い合わせ

全物件
仲介手数料無料
仲介から
入居工事まで
ワンストップで対応
経験豊富なスタッフが
スピード感をもって
対応

周辺での似た条件の物件

非公開物件 多数あり!

お問い合わせフォーム