takeofficeなら掲載物件の仲介手数料は無料です

伊海田ビル

住所 東京都中央区八丁堀3-25-8
交通 JR京葉線八丁堀」 徒歩1分
東京メトロ東西線茅場町」 徒歩7分
東京メトロ有楽町線新富町」 徒歩8分
竣工 1978年 構造 SRC
規模 地上7階 耐震基準 旧耐震基準
床構造 フリーアクセス 空調設備 個別空調
天井高 - 基準階面積 29坪(96m2)
コンセント容量 - 施工会社

最新の募集状況や類似物件については、
こちらにお問い合わせください。

NOW PRINTING

外観

  • NOW PRINTING

    エントランス

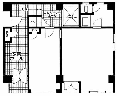
  • 基準階(2~5F)

    基準階(2~5F)

  • 1F

    1F

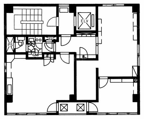
  • 6F

    6F

内見やお見積りなどの各種お問い合わせ

全物件
仲介手数料無料
仲介から
入居工事まで
ワンストップで対応
経験豊富なスタッフが
スピード感をもって
対応

周辺での似た条件の物件

非公開物件 多数あり!

お問い合わせフォーム