takeofficeなら掲載物件の仲介手数料は無料です

エイトビル

住所 東京都中央区八丁堀4-5-9
交通 JR京葉線八丁堀」 徒歩2分
東京メトロ有楽町線新富町」 徒歩5分
都営浅草線宝町」 徒歩8分
竣工 1974年08月 構造 SRC
規模 地上8階 耐震基準 旧耐震基準
床構造 - 空調設備 個別空調
天井高 - 基準階面積 --
コンセント容量 - 施工会社

最新の募集状況や類似物件については、
こちらにお問い合わせください。

エイトビル 外観

外観

  • NOW PRINTING

    エントランス

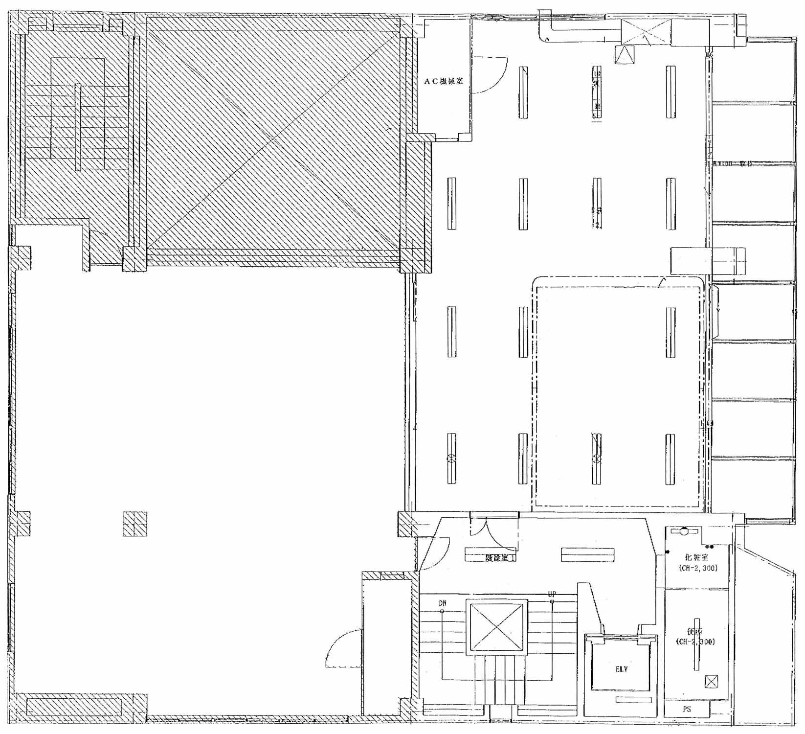
  • 6F

    6F

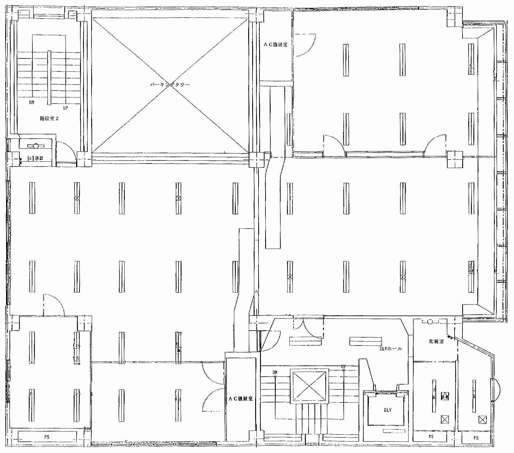
  • 7F

    7F

内見やお見積りなどの各種お問い合わせ

全物件
仲介手数料無料
仲介から
入居工事まで
ワンストップで対応
経験豊富なスタッフが
スピード感をもって
対応

周辺での似た条件の物件

非公開物件 多数あり!

お問い合わせフォーム