takeofficeなら掲載物件の仲介手数料は無料です

金谷ビル

住所 東京都中央区八丁堀4-11-3
交通 JR京葉線八丁堀」 徒歩3分
東京メトロ有楽町線新富町」 徒歩6分
都営浅草線宝町」 徒歩9分
竣工 1973年 月 構造 SRC
規模 地上8階, 地下0階 耐震基準 新耐震基準
床構造 - 空調設備 個別空調
天井高 - 基準階面積 34坪(113m2)
コンセント容量 - 施工会社
坪面積 用途 賃料 坪単価 共益費 入居可能日
4 18.93坪 事務所 ¥189,300(税込 ¥208,230) ¥10,000(税込 ¥11,000) ¥37,860(税込 ¥41,646)
6 15.38坪 事務所 ¥184,560(税込 ¥203,016) ¥12,000(税込 ¥13,200) ¥30,760(税込 ¥33,836) 相談
金谷ビル 外観

外観

  • 金谷ビル エントランス写真

    エントランス

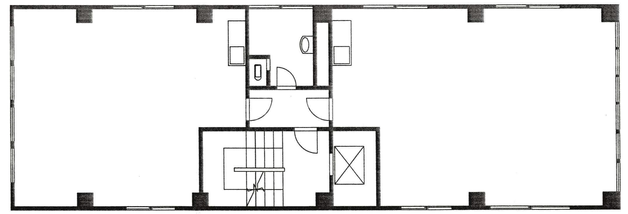
  • 基準階

    基準階

内見やお見積りなどの各種お問い合わせ

全物件
仲介手数料無料
仲介から
入居工事まで
ワンストップで対応
経験豊富なスタッフが
スピード感をもって
対応

※「ご相談」と記載されている項目について
賃貸人が募集賃料条件を守秘義務の関係から明示していない場合に、【ご相談】と記載しております。
フリーレント(賃料免除)期間、使用面積、入居時期、テナント様の与信などによりご提示できる条件が若干変化いたします。
お手数ですが、詳細につきましては、上記よりお問い合わせください。

周辺での似た条件の物件

非公開物件 多数あり!

お問い合わせフォーム