takeofficeなら掲載物件の仲介手数料は無料です

日本橋イースト(旧:日本橋茅場町BLD)

住所 東京都中央区日本橋茅場町2-9-2
交通 東京メトロ東西線茅場町」 徒歩1分
竣工 2009年01月 構造 鉄骨造+SRC
規模 地上8階, 地下1階 耐震基準 新耐震基準
床構造 フリーアクセス 100mm 空調設備 個別空調
天井高 2670mm 基準階面積 63.72坪(210.64m2)
コンセント容量 70VA/m2 施工会社 前田建設工業

最新の募集状況や類似物件については、
こちらにお問い合わせください。

日本橋イースト(旧:日本橋茅場町BLD) 外観

外観

  • 日本橋イースト(旧:日本橋茅場町BLD) エントランス写真

    エントランス

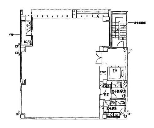
  • 基準階(3~8F)

    基準階(3~8F)

  • 1F

    1F

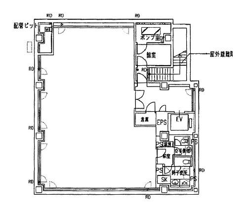
  • B1F

    B1F

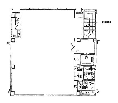
  • 2F

    2F

建物パンフレット

建物パンフレットは作成時点のものであり、また計画段階のものも含まれる為、実際とは異なる場合がございます。

内見やお見積りなどの各種お問い合わせ

全物件
仲介手数料無料
仲介から
入居工事まで
ワンストップで対応
経験豊富なスタッフが
スピード感をもって
対応

周辺での似た条件の物件

非公開物件 多数あり!

お問い合わせフォーム